Ready-to-move-in home near the station with private balcony and garage.
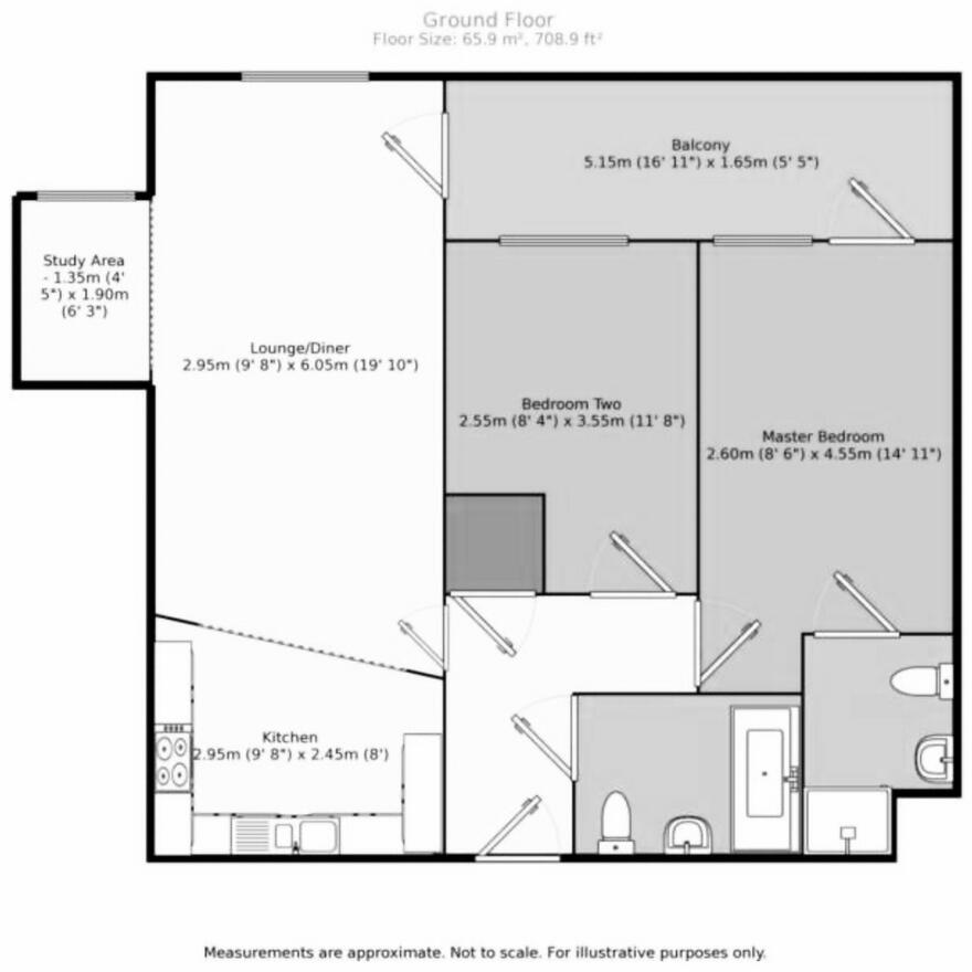
Newly renovated two-bedroom first-floor apartment
This modern two-bedroom first-floor apartment has been newly renovated and offers a low-maintenance home close to Ashford town centre. The open-plan living area and fitted kitchen create a bright, flexible space, while the main bedroom benefits from an en suite and the private balcony provides a small outdoor retreat. A garage is included for secure parking.
The property is chain free and sits approximately a 12-minute walk from the station, making it a practical option for commuters or first-time buyers seeking convenience. At about 708 sq ft with double glazing and gas central heating, the apartment is ready to move into with contemporary finishes throughout.
There are some important local factors to note: the building lies in a very deprived area with higher-than-average crime levels and average mobile and broadband services. The flat is leasehold with 109 years remaining and a ground rent of £250 per year, which buyers should factor into ongoing costs. Overall, this is a newly refurbished, well-located flat offering good commuter access and investment potential, balanced against clear neighbourhood and tenure considerations.
2 bedroom flat for sale in Drummond Grove, Willesborough, TN24 — £165,000 • 2 bed • 2 bath • 603 ft²
2 bedroom flat for sale in Drummond Grove, Willesborough, Ashford, TN24 — £170,000 • 2 bed • 2 bath • 629 ft²
2 bedroom flat for sale in Drummond Grove, Willesborough, Ashford TN24 — £165,000 • 2 bed • 2 bath • 678 ft²
2 bedroom apartment for sale in Sir John Fogge Avenue, Ashford TN23 — £250,000 • 2 bed • 2 bath • 775 ft²
2 bedroom flat for sale in Kings Prospect, Ashford, TN24 — £175,000 • 2 bed • 2 bath • 904 ft²
2 bedroom flat for sale in Godinton Road, Ashford, TN23 — £200,000 • 2 bed • 2 bath • 743 ft²






















































