Large garden backing fields, great for family life and outdoor entertaining.
Extended open-plan kitchen/diner with skylights and bi-folds
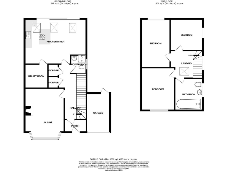
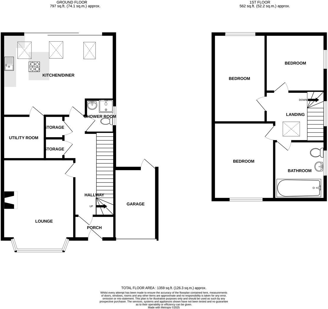
This extended three-bedroom semi-detached home on The Fairway is well suited to families seeking bright, flexible living close to green space. The large, contemporary kitchen/diner with skylights and wide glazing provides strong indoor–outdoor flow to a private rear garden that backs onto school fields — ideal for children and outdoor entertaining.
On the ground floor the layout is practical: a roomy lounge with bay window, utility room, and a stylish shower room add convenience for busy family life. Upstairs are three well-proportioned bedrooms and a modern family bathroom, arranged over a typical 1930s footprint that feels generous for the area.
Outside there is a shingled driveway with off-street parking and an integral single garage, plus a decked seating area, lawn and summerhouse in the largely unoverlooked garden. The property sits moments from Belfairs Woods, within Fairways Primary catchment, and has straightforward road and rail links to London and local amenities.
Notable considerations: the house is solid-brick construction dating from the early 20th century and external wall insulation is not assumed, which may affect heating costs and future upgrade work. The garage is modest in size and double-glazing installation dates are unknown. Council tax is moderate and the area scores as very affluent with low crime and fast broadband.
3 bedroom semi-detached house for sale in Rectory Grove, Leigh-On-Sea, SS9 — £595,000 • 3 bed • 2 bath • 1678 ft²
4 bedroom semi-detached house for sale in Rayleigh Road, Leigh-On-Sea, SS9 — £375,000 • 4 bed • 1 bath • 1077 ft²
3 bedroom semi-detached house for sale in Bailey Road, Leigh-on-sea, SS9 — £650,000 • 3 bed • 1 bath • 1195 ft²
5 bedroom semi-detached house for sale in Bohemia Chase, Leigh-on-sea, SS9 — £600,000 • 5 bed • 2 bath • 1205 ft²
3 bedroom semi-detached house for sale in Orchard Side, Leigh-on-Sea, SS9 — £400,000 • 3 bed • 1 bath • 1016 ft²
3 bedroom terraced house for sale in Eastwood Old Road, Leigh-On-Sea, SS9 — £375,000 • 3 bed • 1 bath






















































































