M21 9AW - Commercial property for sale in Wilbraham Road , Chorlton ,…

View on Property Piper

Commercial property for sale in Wilbraham Road , Chorlton , M21

Summary - 512, WILBRAHAM ROAD M21 9AW

1 bed 1 bath Commercial Property

**Standout Features:**
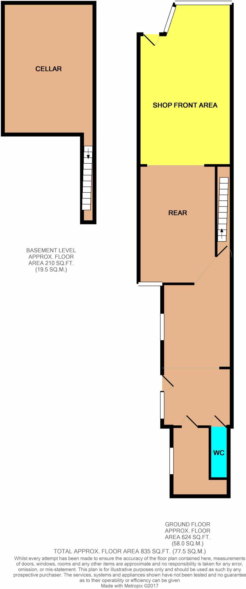
- Spacious commercial property of approximately 834 sqft
- Currently operating as a hair salon and vintage clothing/gift shop
- Prime location in the bustling Chorlton Village with high foot traffic
- Freehold tenure offering long-term investment potential
- Good condition with modern amenities including air conditioning and double glazing
- Suitable for a variety of business uses
- Includes a basement and rear courtyard

**Notable Concerns:**
- Limited insulation in cavity walls
- Requires ongoing maintenance typical for properties of its age (1900-1929)

Nestled in the vibrant heart of Chorlton Village, this impressive commercial property offers a fantastic opportunity for both investors and entrepreneurs seeking a prime retail space. With a total floor area of approximately 834 sqft, the property features a spacious ground floor area of about 624 sq ft, complemented by a functional basement and a private courtyard. Currently trading as both a hair salon and vintage clothing/gift shop, this versatile space is structured to allow for various business operations.

The locale boasts a cosmopolitan vibe with a plethora of amenities just steps away, ensuring constant foot traffic and visibility for your business. Local schools, including those with outstanding ratings, enhance the area's family-friendly appeal. While the property is in good condition, potential buyers should be aware of minimal insulation and typical maintenance needs due to its age, allowing room for personalized updates and improvements.

This unique offering in a sought-after location combines comfort, potential, and a promising business environment—an opportunity not to be missed. Schedule a viewing soon, as spaces like this are quickly being snapped up!

Property Details

Image Descriptions

Floorplan Description

Rooms

Textual Property Features

Detected Visual Features

EPC Details

Nearby Schools

Nearest Bars And Restaurants

,,,,}

Nearest General Shops

,,}

Nearest Grocery shops

,,}

Nearest Supermarkets

,,}

Nearest Religious buildings

,,}

Nearest Medical buildings

,,,}

Nearest Airports

}

Nearest Leisure Facilities

,,,,}

Nearest Tourist attractions

,,}

Nearest Train stations

,,,,}

Nearest Bus stations and stops

,,,,}

Nearest Hotels

,,}

Tags

Local Market Stats

AirBnB Data

Similar Properties

Meta

High Res Images

Compatible Images

Low res Images

Thumbnails

Raw Images

High Res Floorplan Images

Compatible Floorplan Images

Low res Floorplan Images

FloorplanImages Thumbnail

Raw Floorplan Images