Large freehold three-bed with garden and strong transport links.
Over 1,300 sqft living space across two reception rooms
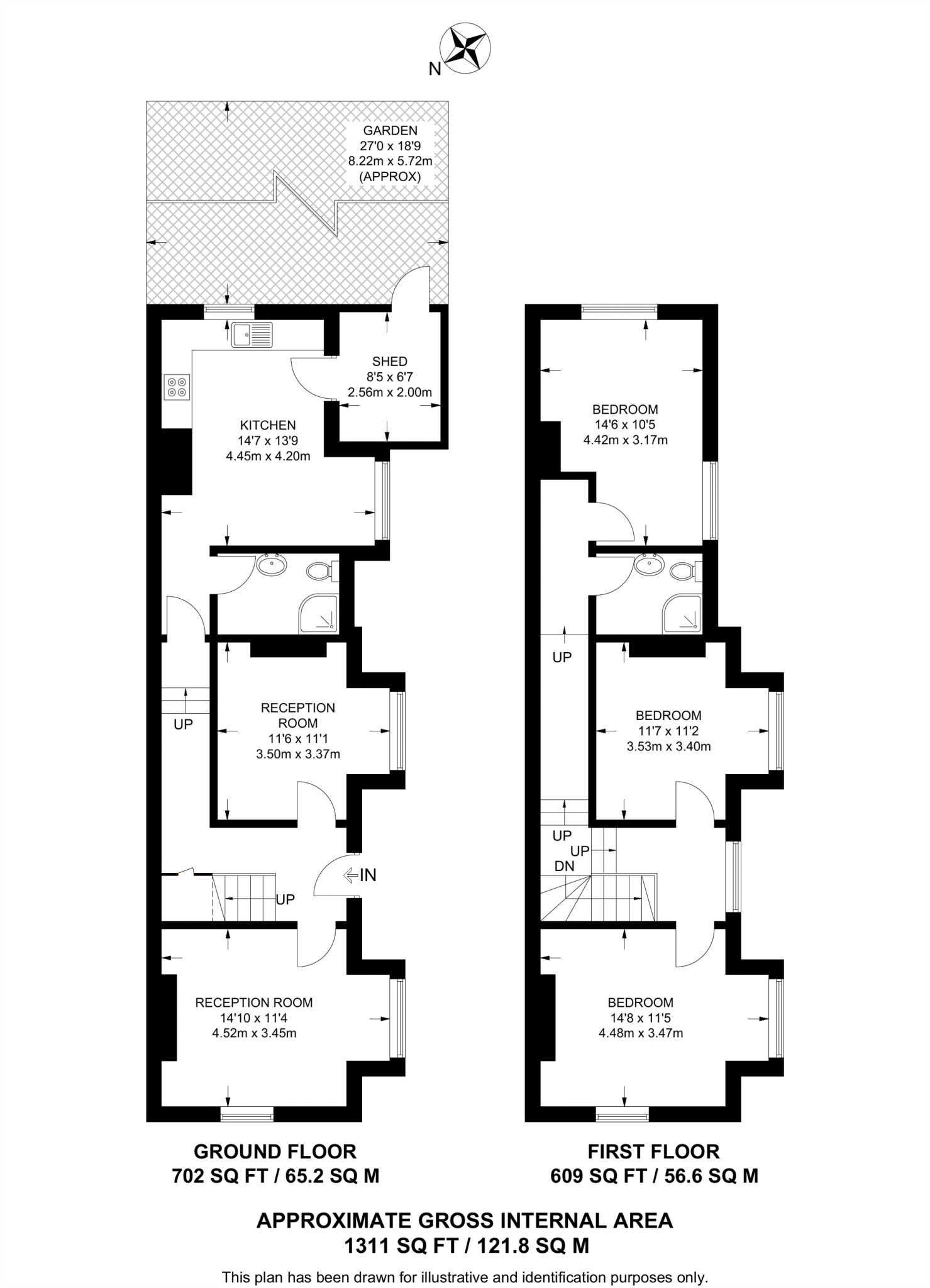
Set on a quiet Catford street, this spacious three-bedroom end-of-terrace offers over 1,300 sqft of living space across two generous reception rooms and two bathrooms. Built c.1900–1929, the house retains period proportions and high ceilings, with a private rear garden and shed. Its freehold tenure and strong transport links (Catford and Catford Bridge stations nearby) make it straightforward to occupy or let.
Internally the property requires updating: worn flooring, peeling paint and dated fittings are evident and the solid brick walls are assumed to be uninsulated. These are practical, predictable renovation tasks that present clear scope to improve energy performance and finish. The layout and room sizes are flexible and suit conversion, refurbishment for rental uplift, or a family seeking long-term scope to personalise.
The location is a further asset: fast broadband and excellent mobile signal support modern working, while nearby green space (Bell Green Park) and multiple well-rated primary and secondary schools make the area attractive to prospective tenants or buyers. There is no flood risk recorded and local crime and deprivation indicators are average.
This is a straightforward freehold opportunity for an investor or buyer looking for a renovation project with strong rental or resale potential in an inner-city, culturally mixed area. Budget for updating and insulation works to unlock the property’s full value.
3 bedroom terraced house for sale in Ardoch Road, Catford, London, SE6 — £575,000 • 3 bed • 1 bath • 1124 ft²
4 bedroom terraced house for sale in Ardfillan Road, Catford, London, SE6 — £700,000 • 4 bed • 2 bath • 1741 ft²
3 bedroom terraced house for sale in Abbotshall Road, Catford, London, SE6 — £700,000 • 3 bed • 2 bath • 1336 ft²
3 bedroom semi-detached house for sale in Longdown Road, London, SE6 — £500,000 • 3 bed • 1 bath • 975 ft²
3 bedroom end of terrace house for sale in Conisborough Crescent, Catford, London, SE6 — £500,000 • 3 bed • 1 bath • 861 ft²
3 bedroom terraced house for sale in Torridon Road, London, SE6 — £575,000 • 3 bed • 1 bath • 937 ft²














































































































