Spacious seven-bedroom period house with garden and multiple parking spaces.
Overlooks Christchurch Park with balcony views
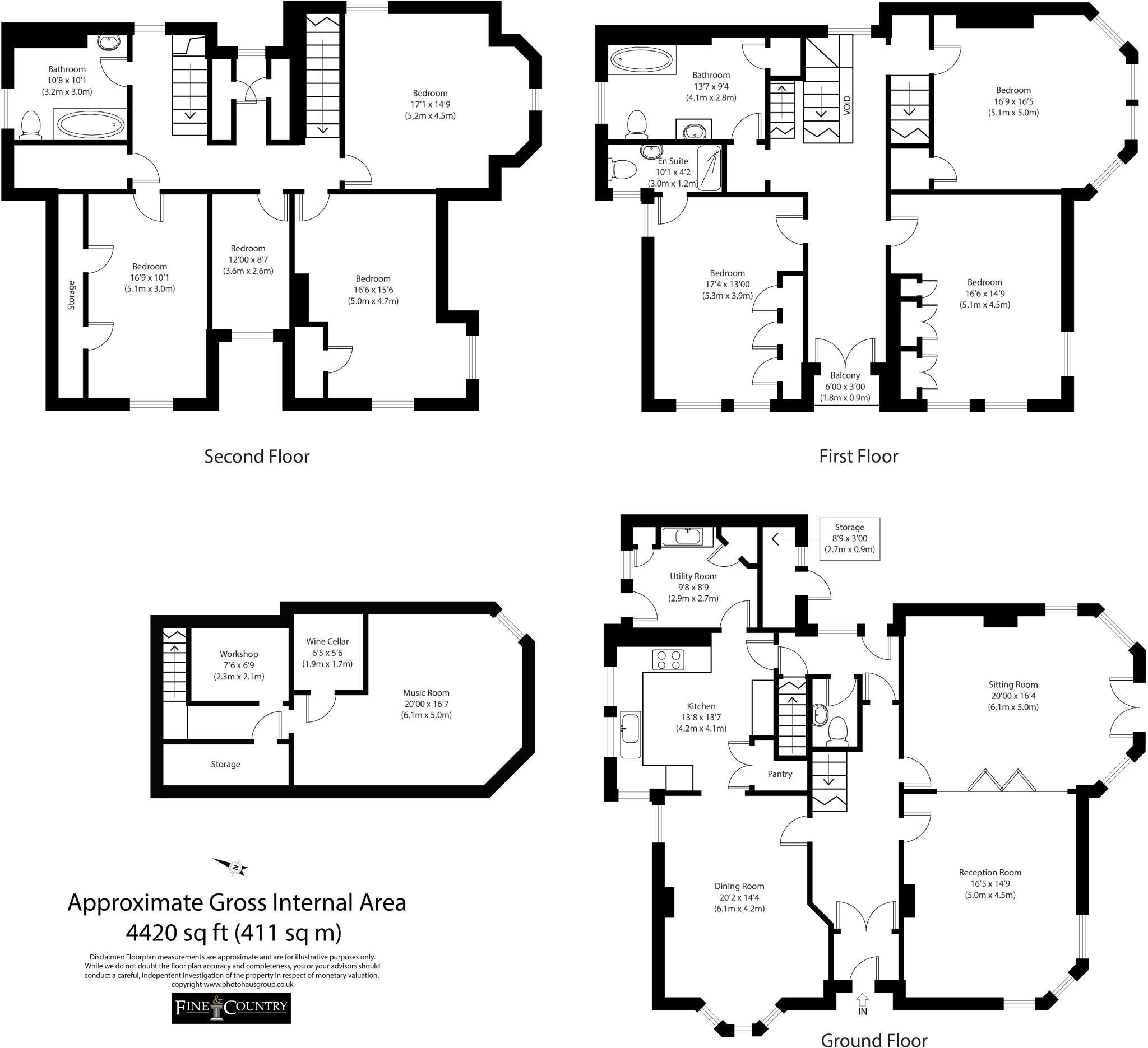
Set directly opposite Christchurch Park, this substantial Victorian detached house offers more than 3,700 sq ft of period accommodation across three floors. High ceilings, bay windows, ornate entryway and a south‑west facing garden create generous family spaces and excellent natural light. The property includes seven bedrooms, three bathrooms, three reception rooms, a cellar and a balcony with park views — suited to a large family or multi‑generational living.
Built before 1900 in solid brick, the house has strong period character but some practical upgrades are likely — particularly insulation and modernisation of services — which should be factored into plans. Council tax is described as quite expensive; the property is freehold and has off‑street parking for multiple vehicles, an important convenience in this location.
The setting is exceptional for families: top local schools within easy reach, excellent mobile and broadband, low crime and affluent surroundings. The accommodation and plot size also present potential for conversion, refurbishment or a high‑end rental investment, subject to any necessary consents. Buyers looking for a turn‑key home may need to allow budget and time for sympathetic updating.
4 bedroom detached house for sale in Fonnereau Road, Ipswich, Suffolk, IP1 — £735,000 • 4 bed • 2 bath • 1999 ft²
5 bedroom semi-detached house for sale in Constitution Hill, Ipswich, IP1 — £650,000 • 5 bed • 2 bath • 2200 ft²
4 bedroom town house for sale in Cemetery Road, Ipswich, IP4 — £325,000 • 4 bed • 1 bath • 1322 ft²
5 bedroom detached house for sale in Dalton Road, Ipswich, Suffolk, IP1 — £800,000 • 5 bed • 3 bath • 2644 ft²
5 bedroom detached house for sale in Westerfield Road, Ipswich, Suffolk, IP4 — £850,000 • 5 bed • 2 bath • 2668 ft²
3 bedroom detached house for sale in Valley Road, Ipswich, Suffolk, IP1 — £535,000 • 3 bed • 3 bath • 1815 ft²






























































































































