Small, single-storey home ideal for downsizers or buyers wanting renovation potential.
Freehold detached bungalow with no upward chain
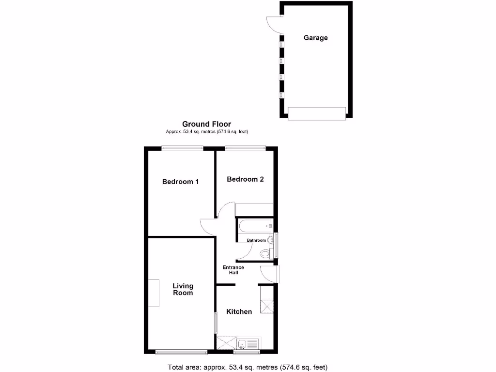
This detached two-bedroom bungalow on Melbourne Street is a practical, chain-free option for downsizers or buyers seeking a single-storey home. The layout includes a spacious living room, fitted kitchen, two bedrooms with built-in wardrobes and a three-piece bathroom — a straightforward canvas for modest modernisation.
Outside, the bungalow sits on a small plot with a lawned rear garden, driveway and single garage providing parking and storage. The property benefits from mains gas central heating, double glazing and fast broadband, and lies on a regular bus route close to local shops, post office and medical amenities.
The home does require renovation and updating throughout — cosmetic and likely some systems work — so it suits buyers willing to invest time and budget to improve finishes. The area shows signs of economic challenge and the overall floor area is small (approx 574 sq ft), which limits expansion potential.
Offered freehold with no upward chain and a low council tax band, this bungalow represents a reasonably priced entry or downsize opportunity for someone wanting single-level living and a property to personalise.
2 bedroom detached bungalow for sale in Waterdown Close, Mansfield Woodhouse, Mansfield, NG19 — £230,000 • 2 bed • 1 bath • 669 ft²
2 bedroom detached bungalow for sale in Melbourne Street, Mansfield Woodhouse, Mansfield, NG19 — £340,000 • 2 bed • 2 bath • 878 ft²
2 bedroom bungalow for sale in George Street, Mansfield, Nottinghamshire, NG19 — £150,000 • 2 bed • 1 bath • 1073 ft²
2 bedroom bungalow for sale in Park Hall Gardens, Mansfield Woodhouse, Mansfield, Nottinghamshire, NG19 — £220,000 • 2 bed • 1 bath • 762 ft²
2 bedroom bungalow for sale in Wood Close, Forest Town, Mansfield, NG19 — £200,000 • 2 bed • 1 bath • 780 ft²
2 bedroom detached bungalow for sale in Crookes Avenue, Pleasley, NG19 — £200,000 • 2 bed • 1 bath • 775 ft²






















































































