**Property Highlights:**
- 2-bedroom mid-terraced home
- Detached garage
- Front and rear gardens
- No forward chain
- Close to excellent primary and secondary schools
- Convenient access to Maidstone East and West mainline stations
- Located near Maidstone High Street
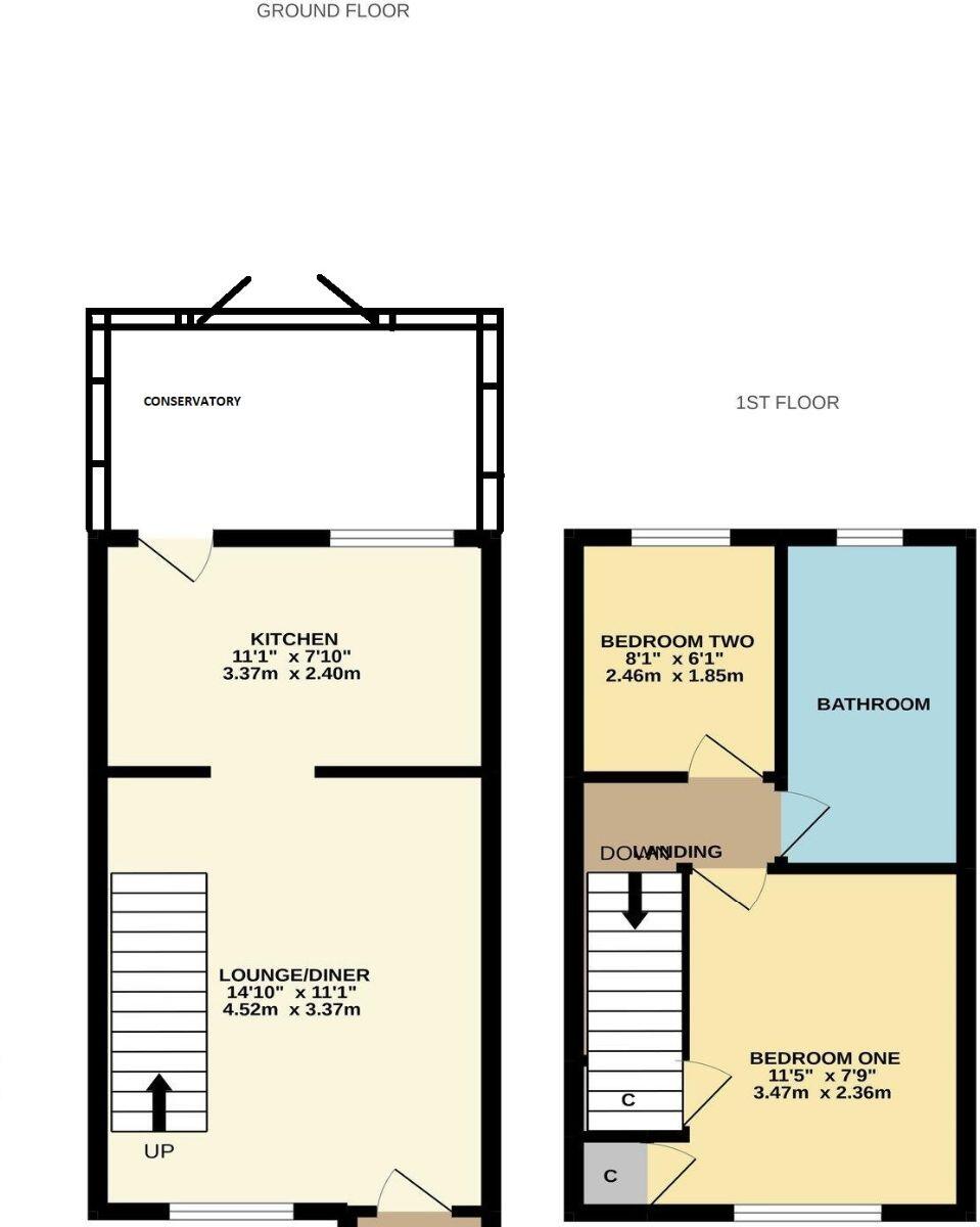
This charming two-bedroom terraced house in Maidstone offers an excellent opportunity for first-time buyers and investors alike. Boasting a detached garage, a low-maintenance rear garden, and a welcoming front garden, this property brings both comfort and convenience. Inside, enjoy a functional layout complete with a separate kitchen, a cozy lounge/diner, and a versatile conservatory perfect for relaxation or as a home office.
Positioned centrally, you're steps away from top-rated schools and major transport links, making this an ideal spot for families and commuters. While the home is well-presented, it does present renovation potential for those looking to add their personal touch. Priced at £270,000, this freehold property is a rare find in today's market—act now to secure your future in this desirable location.
2 bedroom semi-detached house for sale in Birch Tree Way, Maidstone, Kent, ME15 — £300,000 • 2 bed • 1 bath • 1001 ft²
2 bedroom terraced house for sale in Tonbridge Road, Maidstone, Kent, ME16 — £280,000 • 2 bed • 1 bath • 639 ft²
2 bedroom semi-detached house for sale in McAlpine Crescent, Maidstone, ME15 — £280,000 • 2 bed • 1 bath • 955 ft²
2 bedroom terraced house for sale in Milton Street, Maidstone, Kent, ME16 — £250,000 • 2 bed • 1 bath • 606 ft²
2 bedroom terraced house for sale in Hildenborough Crescent, Maidstone, ME16 — £300,000 • 2 bed • 1 bath • 668 ft²
2 bedroom terraced house for sale in The Head Race, Maidstone, Kent, ME15 — £250,000 • 2 bed • 1 bath • 584 ft²






















































