Chain-free two-bedroom city flat with gated parking and EWS1 certificate, ideal for investors..
Secure gated parking included
This two-bedroom apartment at Brindley Point offers a straightforward investment opportunity close to Brindley Place and Birmingham city centre. The building benefits from secure gated parking, an EWS1 cladding certificate and mains gas central heating, which reduce immediate compliance and major-services concerns for a buyer or landlord.
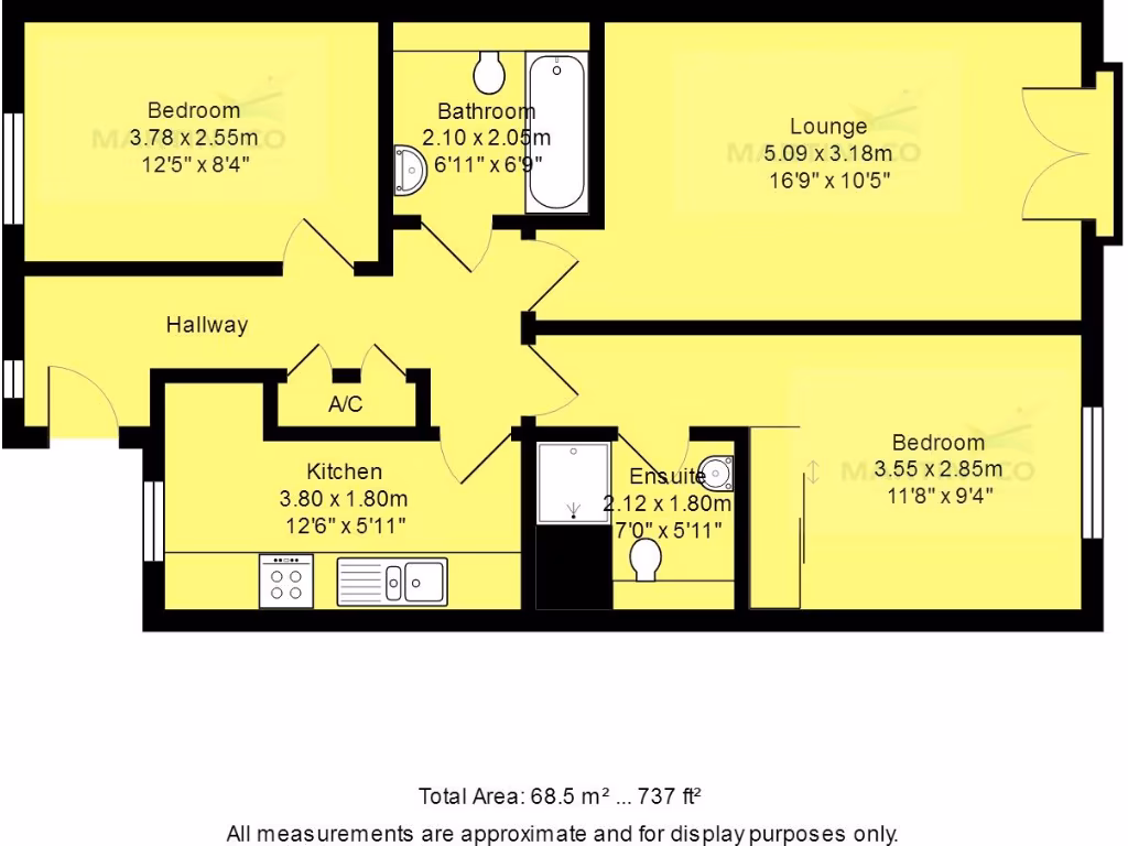
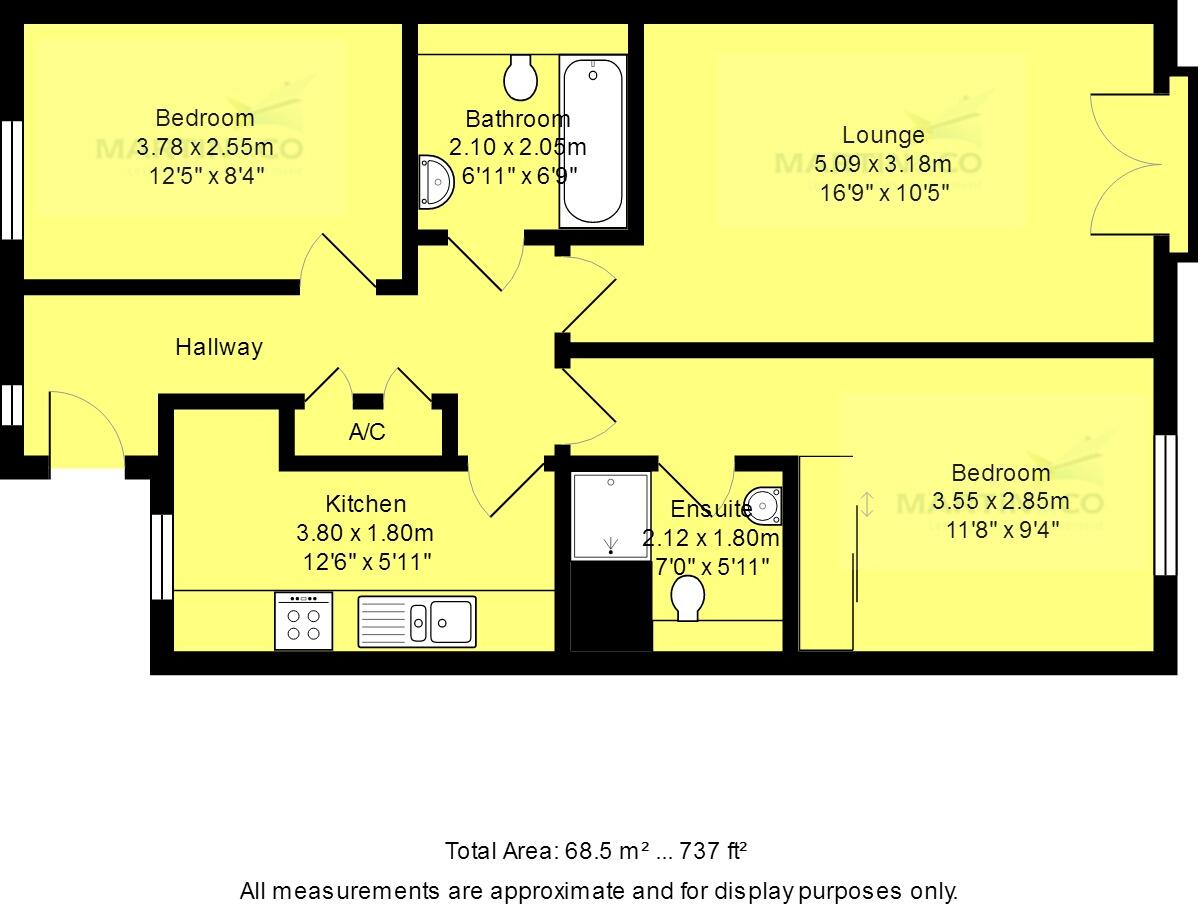
The apartment is arranged with a sociable lounge/diner that opens onto a Juliette balcony, a separate kitchen, a master bedroom with en suite and a second double bedroom. At about 737 sq ft the accommodation is average-sized for its type and suits tenants seeking city living close to transport, leisure and university areas.
Buyers should note material running costs and local context: the service charge is high at £4,097 per annum, ground rent is £150 per annum, and the property is leasehold (125 years from 1 July 2001). The immediate area is classified as very deprived with very high crime levels and a multicultural student neighbourhood profile, which will influence rental demand, tenant mix and resale expectations.
Overall this is a practical, chain-free flat with on-site parking and up-to-date cladding certification that will appeal to investors or buyers prioritising central location and rental potential. Factor in the service charge, local area characteristics and leasehold tenure when assessing long-term yield and exit plans.
2 bedroom flat for sale in Brindley Point, Birmingham, B16 — £180,000 • 2 bed • 2 bath • 676 ft²
2 bedroom flat for sale in Sheepcote Street, Birmingham, West Midlands, B16 — £150,000 • 2 bed • 2 bath • 765 ft²
2 bedroom flat for sale in Sheepcote Street, Birmingham, B16 — £195,000 • 2 bed • 2 bath • 678 ft²
2 bedroom flat for sale in Sheepcote Street, Birmingham, West Midlands, B16 — £170,000 • 2 bed • 2 bath • 727 ft²
2 bedroom apartment for sale in Dakota Apartments, Grosvenor Street West, Birmingham, B16 — £180,000 • 2 bed • 1 bath • 1341 ft²
2 bedroom apartment for sale in Grosvenor Street West, Birmingham, B16 — £161,000 • 2 bed • 2 bath • 506 ft²






















































