Income-producing terrace with clear refurbishment upside for enterprising buyers.
["Long-term tenant in situ producing £9,000pa gross","Estimated rental potential £13,800pa at market rate","Freehold Victorian end-terrace with conservatory","Three bedrooms but generally small room sizes","Single bathroom only; compact internal layout","Small garden/plot; no garage or off-street parking","Higher-than-average local crime; constrained rental area","Buyers’ premium applies — include in acquisition costs"]
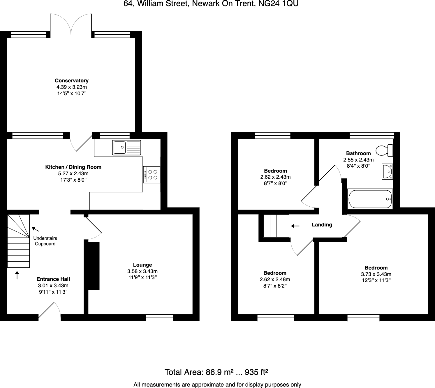
This three-bedroom end-of-terrace in Newark is offered as a buy-to-let opportunity with a long-term tenant in situ, producing a current gross income of £9,000 per year. The property is a traditional Victorian two-storey brick house with average overall size, compact rooms and a small plot — practical for investors seeking steady rental return or developers able to upgrade.
The layout includes lounge, kitchen, bathroom and a conservatory that brings extra natural light and indoor–outdoor flow. The property has been described as well maintained by the current occupiers but presents clear scope to increase rental income to an estimated market rate of £13,800 annually after re-letting or refurbishment, providing tangible uplift potential for the new owner.
Material considerations are set out plainly: there is only one bathroom, rooms are generally small, and the house sits in a wider area of constrained renters and higher-than-average crime. The site is freehold and not at flood risk, with strong mobile signal and fast broadband — positives for tenancy demand. A buyers’ premium applies to secure the purchase — factor this into total acquisition costs.
This offer suits an investor or small portfolio buyer seeking an income-producing asset with short-term upside from refurbishment or rent review. It will also appeal to developers who can optimise space and layout, but purchasers should budget for upgrading works where desired and accept the constraints of a compact Victorian terrace in a working-class area.
2 bedroom terraced house for sale in Albert Street, Newark, NG24 — £145,000 • 2 bed • 1 bath • 776 ft²
4 bedroom semi-detached house for sale in Wellington Road, Newark, NG24 — £299,950 • 4 bed • 1 bath • 1506 ft²
2 bedroom terraced house for sale in Harcourt Street, Newark, NG24 — £125,000 • 2 bed • 1 bath • 575 ft²
2 bedroom end of terrace house for sale in King Street, Newark, NG24 — £150,000 • 2 bed • 1 bath • 760 ft²
3 bedroom town house for sale in Stodman Mews, Newark, NG24 — £140,000 • 3 bed • 1 bath • 474 ft²
2 bedroom terraced house for sale in Albion Street, Newark, NG24 — £110,000 • 2 bed • 1 bath • 474 ft²










































































































