Modern family living with garden and driveway in a quiet cul-de-sac.
Three-storey mid-terrace townhouse with three/four bedrooms
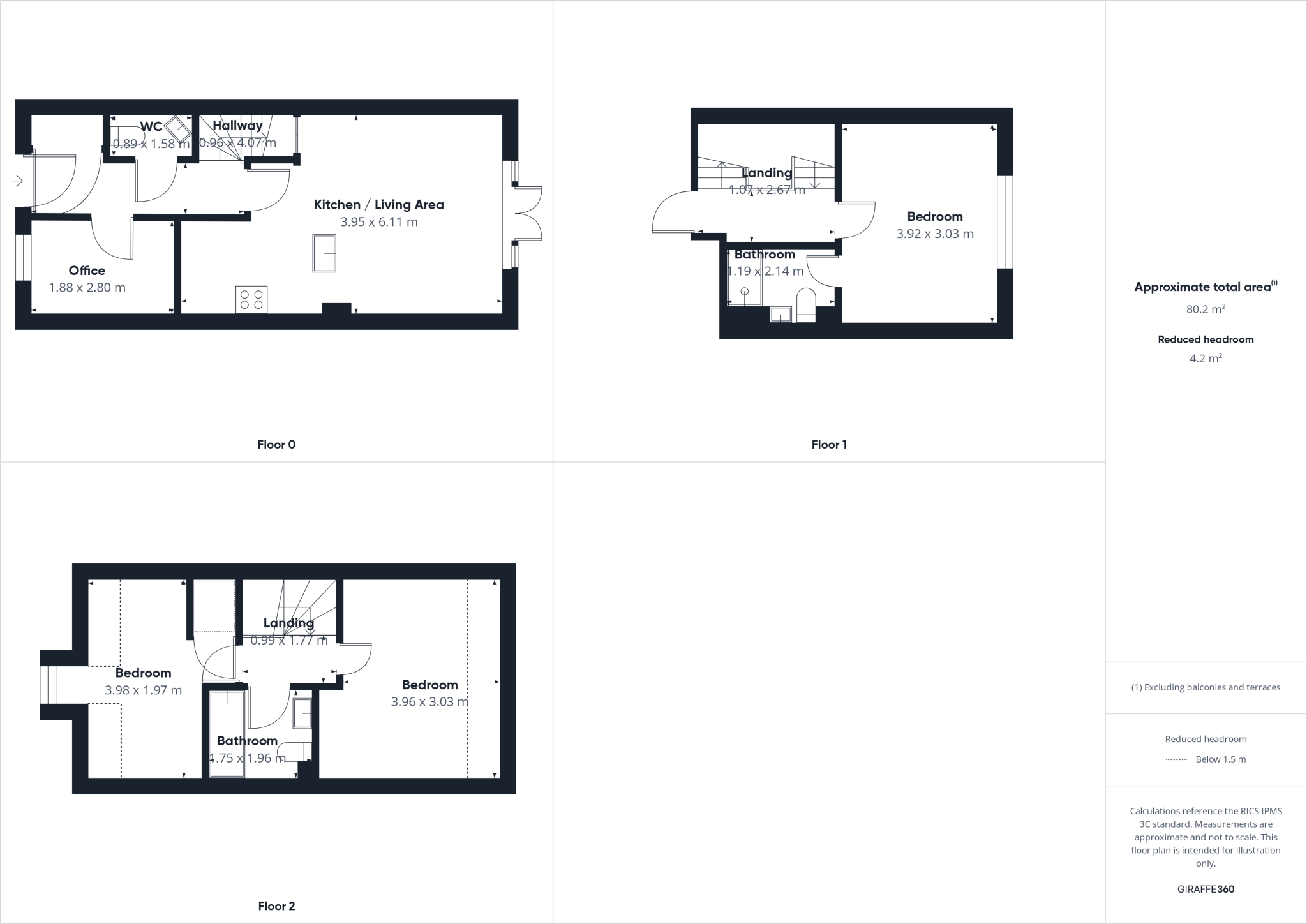
Set at the end of a pleasant cul-de-sac, this contemporary three-storey townhouse delivers flexible family living across three floors. Built in 2017, the home feels modern and well-specified with an open-plan dining kitchen, separate study and a principal bedroom with en suite. French doors link the living space to a private rear garden, creating easy indoor–outdoor flow for children and entertaining.
The layout offers true versatility: a formal lounge on the first floor could serve as a fourth bedroom, while two additional bedrooms occupy the top floor along with a family bathroom. At around 863 sq ft the house is an average-sized family home that maximises its space with sensible room planning and good natural light throughout.
Practical features include off-street parking on the driveway, mains gas boiler and fast broadband and mobile coverage for home working. The property sits in a family-friendly area with a mix of good and improving local schools and easy access to local shops, buses and healthcare.
A few details remain to confirm: tenure and council tax band information are not provided, and buyers should verify EPC specifics. Overall, this mid-terrace townhouse is well suited to growing families seeking contemporary, low-maintenance living in a convenient Heaton location.
3 bedroom terraced house for sale in Plessey Terrace, High Heaton, NE7 — £190,000 • 3 bed • 2 bath
3 bedroom terraced house for sale in St. Aloysius View, Hebburn, NE31 — £210,000 • 3 bed • 2 bath • 1012 ft²
3 bedroom terraced house for sale in Heaton Quarter,
Heaton,
Newcastle upon Tyne,
NE6 5BT
, NE6 — £339,995 • 3 bed • 1 bath • 1019 ft²
3 bedroom terraced house for sale in The Swarbourn, Hartford Street, Heaton, NE6 — £339,995 • 3 bed • 2 bath
4 bedroom town house for sale in Dobson Crescent, Newcastle Upon Tyne, NE6 — £300,000 • 4 bed • 1 bath • 1118 ft²
3 bedroom semi-detached house for sale in The Westbourne, Heaton Quarter, Newcastle Upon Tyne, NE6 — £334,995 • 3 bed • 2 bath


























































































































































