Large period building with redevelopment upside for experienced investors.
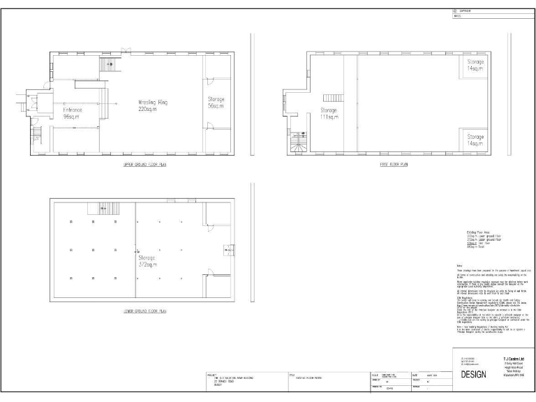
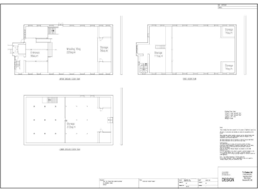
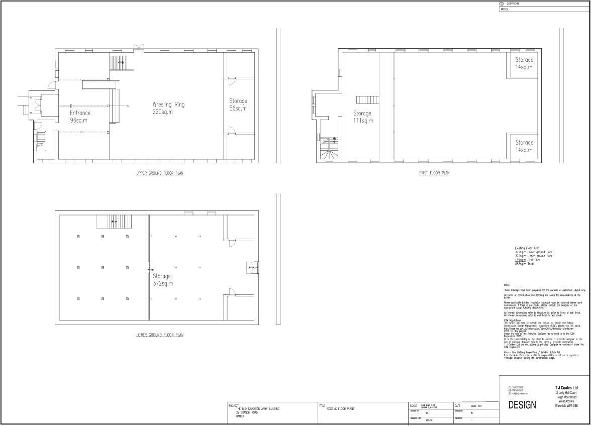
Freehold commercial building with extremely large 9,787 sq ft interior
Prominent roadside frontage with large display windows and high ceilings
Located near bus station; Batley rail station about 1km away
Previously A1 retail; vacant possession possible after current lease ends
Boarded-up and derelict condition — requires full renovation works
Area classified as very deprived with very high local crime rates
Large plot and period character offer redevelopment or conversion potential
Tenure freehold; planning consents required for structural/frontage changes
This substantial freehold commercial building on Branch Road presents a rare investment and development opportunity in central Batley. The property occupies a prominent roadside position with large display windows and high ceilings, offering strong street visibility and flexible interior space ideal for retail, showroom, or community-focused uses.
The building is currently boarded and in derelict condition and will require comprehensive renovation or conversion works. Subject to necessary consents, the frontage could be reopened and reconfigured to create new shopfronts or entrances. The site has previously operated as A1 retail and more recently as a wrestling club; vacant possession is available when the current lease ends in late September.
Transport links and local amenities are good for the town centre: the bus station sits to the rear and Batley railway station is approximately 1km away. Nearby facilities include multiple shops, banks, supermarkets and community services, supporting a steady flow of footfall.
Buyers should note several constraints: the immediate area is classified as very deprived with very high crime levels, and the building is in a boarded-up, derelict state requiring significant investment. For investors or developers able to manage refurbishment and planning risk, the property's size, period character and freehold tenure provide scope for a range of commercial uses or a potential redevelopment (subject to planning).
Pub for sale in Licenced Trade, Pubs & Clubs, West Yorkshire, WF17 — £380,000 • 1 bed • 1 bath • 1687 ft²
Commercial property for sale in Oates Street, Dewsbury, WF13 — £49,500 • 1 bed • 1 bath • 2185 ft²
High street retail property for sale in Bankfoot Place, Batley, West Yorkshire, WF17 — £650,000 • 1 bed • 1 bath • 5299 ft²
Shop for sale in Union Street, Dewswbury, West Yorkshire, WF13 — £160,000 • 1 bed • 1 bath • 1938 ft²
Office for sale in Westgate, Dewsbury, West Yorkshire, WF13 — £350,000 • 1 bed • 1 bath • 6976 ft²
Commercial property for sale in 7-13 Halifax Road, Dewsbury, West Yorkshire, WF13 — £250,000 • 1 bed • 1 bath • 6119 ft²






































