Move-in-ready apartment with balcony near fast transport links and good schools.
70% shared ownership—buyer purchases 70% of the property
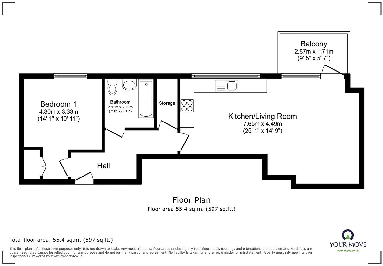
A well-presented one-bedroom second-floor apartment offering 70% shared ownership in SE14, ideal for a first-time buyer seeking a move-in-ready home. The open-plan living space opens onto a private balcony, and the property benefits from a B EPC, communal gardens and a bike store. The 116-year lease and chain-free sale simplify purchase logistics.
Transport links are a major strength: quick access to New Cross Gate and Queens Road Peckham stations makes commuting straightforward. Broadband speeds are fast and mobile signal is excellent, supporting remote working and streaming. Nearby primary and secondary schools have Good or Outstanding Ofsted ratings, adding convenience for young families.
Buyers should note this is a shared ownership sale (70% share) with an annual ground rent of £250 and a monthly service charge of approximately £51 (annual £613.92). There is also a monthly rent of £350.50 on the unsold share. The local area experiences above-average crime and higher deprivation levels, which prospective purchasers should consider when viewing.
2 bedroom flat for sale in Moulding Lane, London, SE14 — £137,500 • 2 bed • 1 bath • 900 ft²
2 bedroom flat for sale in Gaumont House, Peckham, London, SE15 — £148,000 • 2 bed • 1 bath • 640 ft²
1 bedroom flat for sale in Silver Road, London, SE13 — £145,250 • 1 bed • 1 bath • 541 ft²
1 bedroom flat for sale in Norfolk House, 9 Brookmill Road, Deptford, London, SE8 4HL, SE8 — £71,250 • 1 bed • 1 bath
2 bedroom flat for sale in Moulding Lane, New Cross, SE14 — £250,000 • 2 bed • 1 bath • 805 ft²
1 bedroom flat for sale in Thurston Road, London, SE13 — £102,000 • 1 bed • 1 bath • 479 ft²






































