NN18 0LS - 3 bedroom terraced house for sale in Greenhill Rise, Corby,…

View on Property Piper

3 bedroom terraced house for sale in Greenhill Rise, Corby, NN18

Summary - 114 GREENHILL RISE CORBY NN18 0LS

3 bed 1 bath Terraced

Chain-free three-bedroom terrace with a large rear garden and strong connectivity.
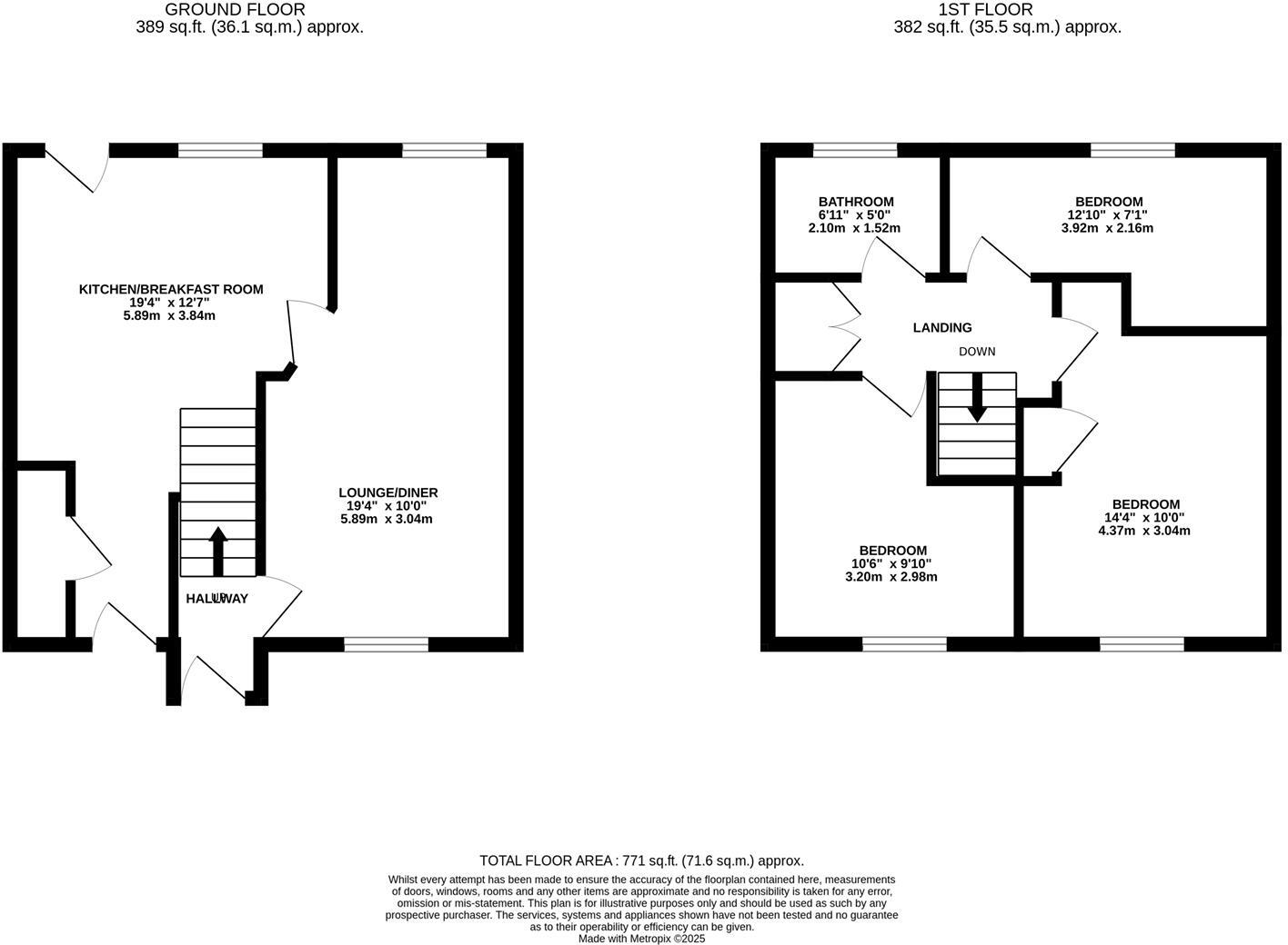
Chain-free freehold mid-terraced house, approx. 771 sq ft
Chain-free mid-terraced home offering three bedrooms and a large private rear garden — a practical starter or budget family purchase. The layout is straightforward: ground-floor lounge and kitchen/diner, three first-floor bedrooms and a single family bathroom. At about 771 sq ft, the footprint is compact but rooms are well-proportioned and naturally bright.

The property is freehold and well positioned for local amenities, schools rated Good, and the town centre. Mobile signal and broadband are reported strong, supporting home working or modern connectivity needs. The long rear garden is a standout asset, providing scope for landscaping, extension (subject to consent), or creating outdoor living space.

Buyers should note the house sits in a more deprived, transitional neighbourhood with average crime levels; this may affect resale timing and rental yields. The interior appears tidy but basic — cosmetic updating and modernisation would add value. There’s only one bathroom and the total floor area is modest, so the home best suits first-time buyers, young families, or investors seeking a value-add opportunity.

Property Details

Brochure Descriptions

Image Descriptions

Floorplan Description

Rooms

Textual Property Features

Target Audience

AI Tags

Detected Visual Features

Nearby Schools

Nearest Bars And Restaurants

,,,,}

Nearest General Shops

,,}

Nearest Grocery shops

,,}

Nearest Supermarkets

,,}

Nearest Religious buildings

,,}

Nearest Medical buildings

,,,}

Nearest Leisure Facilities

,,,,}

Nearest Tourist attractions

,,}

Nearest Train stations

,,,,}

Nearest Bus stations and stops

,,,,}

Nearest Hotels

,,}

Tags

Local Market Stats

Similar Properties

Meta

High Res Images

Compatible Images

Low res Images

Thumbnails

Raw Images

High Res Floorplan Images

Compatible Floorplan Images

Low res Floorplan Images

FloorplanImages Thumbnail

Raw Floorplan Images