Period charm, private garden and excellent West End access for first-time buyers.
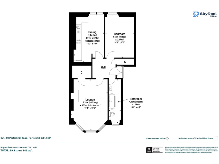
Large one-bedroom apartment — approx. 641 sq ft of living space
Occupying an elevated ground-floor position in a red sandstone tenement, this one-bedroom apartment offers generous living space (approx. 641 sq ft) and authentic period character. High ceilings, a three-section bay window and decorative cornice give the lounge a bright, airy feel, while sash-and-case windows and a focal-point fireplace retain original charm.
The layout suits a first-time buyer seeking a comfortable West End base: a separate dining kitchen, spacious double bedroom and a three-piece bathroom are all presented in good order. Practical extras include gas central heating, useful hallway storage and access to both a private front garden and a well-kept communal rear garden.
Transport and amenities are strong draws — Partick and Hyndland stations and frequent buses connect to the city centre, with Byres Road shops, cafés and parks within walking distance. On-street residents’ parking permits are available, but there is no dedicated off-street parking.
Buyers should note two material considerations: the property sits within an area classified as very deprived, which may influence long-term local investment dynamics; and the Energy Performance Certificate is band D, indicating average energy efficiency. Council Tax is band D. Overall, this apartment blends period appeal and convenient West End location, making it ideal for a first-time buyer wanting character with good transport and amenity access.
1 bedroom flat for sale in White Street, Flat 2/2, Partick, Glasgow, G11 5EB, G11 — £165,000 • 1 bed • 1 bath • 581 ft²
1 bedroom apartment for sale in Hyndland Avenue, Glasgow - G11 — £180,000 • 1 bed • 1 bath • 664 ft²
1 bedroom flat for sale in 2/2, 38 Airlie Street, Hyndland, G12 9TP, G12 — £225,000 • 1 bed • 1 bath • 758 ft²
1 bedroom flat for sale in Oban Drive, North Kelvinside, G20 6AD, G20 — £179,995 • 1 bed • 1 bath • 710 ft²
1 bedroom apartment for sale in Thornwood Avenue, Thornwood, Glasgow, G11 — £125,000 • 1 bed • 1 bath • 454 ft²
1 bedroom apartment for sale in Dick Street, North Kelvinside, Glasgow, G20 — £119,000 • 1 bed • 1 bath • 483 ft²






















































































