**Standout Features:**
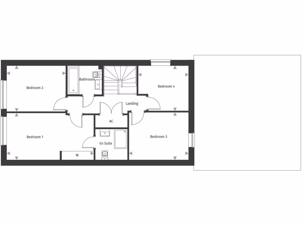
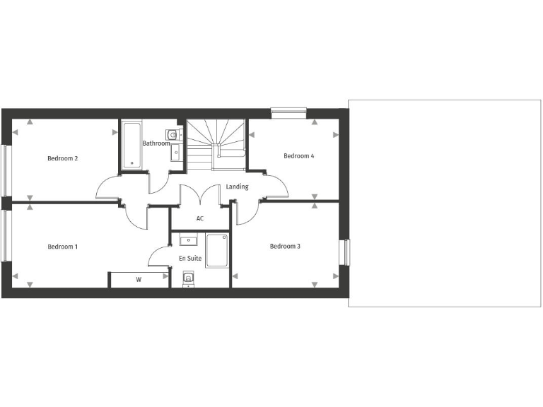
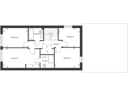
- Brand new, luxury 4-bedroom semi-detached home.
- Spacious open-plan living area with bi-fold doors to the garden.
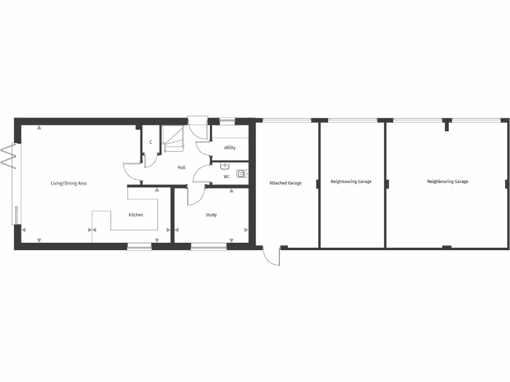
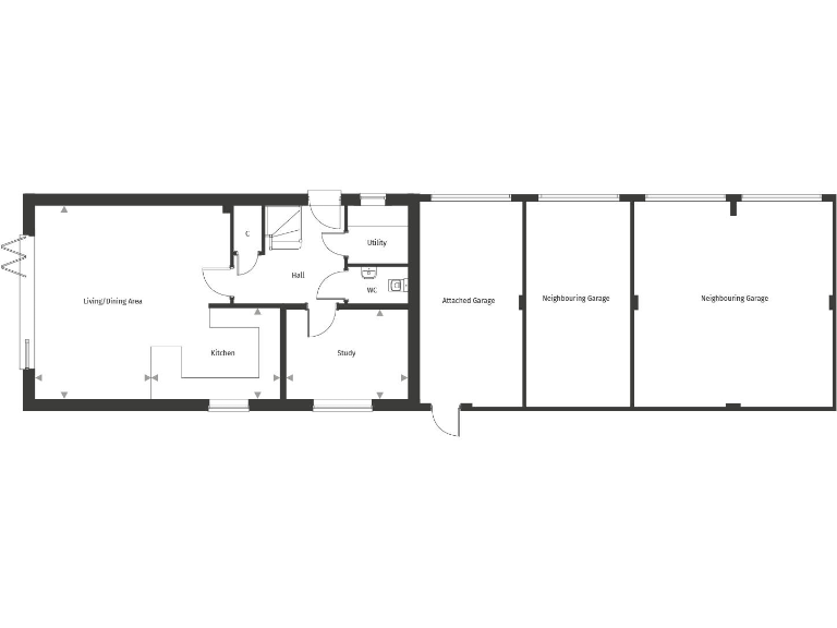
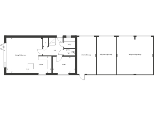
- Includes a ground floor study, cloakroom, separate utility room, garage, and off-road parking.
- Built by award-winning Pennyfarthing Homes with high-spec finishes throughout.
- Located on the edge of the scenic New Forest.
**Potential Downsides:**
- Broadband speeds in the area are very slow.
- New build, may lack some established neighborhood features.
Discover your dream home at this brand new, high-spec 4-bedroom semi-detached house in the desirable Potters Wood development, adjacent to the breathtaking New Forest. The home boasts a generous 19ft open-plan living/dining area, accented by bi-folding doors that seamlessly connect to the landscaped garden, perfect for indoor-outdoor entertaining. Enjoy the added convenience of a ground floor study, utility room, and a cloakroom, along with a garage and off-road parking—ideal for families or professionals needing extra space.
Located in a flourishing community with low crime rates, this home is surrounded by excellent schooling options, parks, and leisure facilities, making it perfect for family life. While the property offers modern comfort and style, prospective buyers should note the area's slow broadband speeds, which may impact connectivity. With a 10-year warranty, this is an exceptional opportunity to own a premium property that blends contemporary living with natural beauty. Don’t miss your chance—schedule a viewing today and envision a life of luxury and comfort in Verwood!
4 bedroom semi-detached house for sale in Westworth Way, Verwood, BH31 — £560,000 • 4 bed • 2 bath • 1400 ft²
4 bedroom detached house for sale in Westworth Way, Verwood, BH31 — £545,000 • 4 bed • 2 bath • 1400 ft²
4 bedroom detached house for sale in Westworth Way, Verwood, BH31 — £565,000 • 4 bed • 3 bath • 1706 ft²
3 bedroom detached house for sale in Westworth Way, Verwood, BH31 — £500,000 • 3 bed • 1 bath • 1163 ft²
3 bedroom semi-detached house for sale in Westworth Way, Verwood, BH31 — £395,000 • 3 bed • 1 bath • 874 ft²
3 bedroom semi-detached house for sale in Westworth Way, Verwood, BH31 — £420,000 • 3 bed • 1 bath • 948 ft²










































































