Spacious single-storey home with large garden for buyers ready to renovate.
Chain-free detached bungalow on a large wrap-around garden plot
Requires full modernisation; dated fixtures and finishes throughout
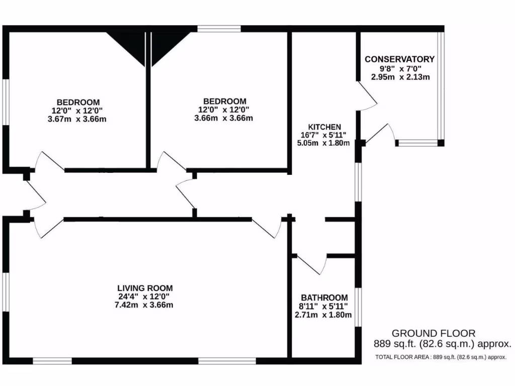
Two double bedrooms, dual-aspect living room, garden room
Double garage and driveway parking at plot entrance
Double glazing installed post-2002; gas central heating present
Located on an unadopted lane — maintenance responsibility possible
Very slow broadband speeds; area classed as deprived
Short, flat walk to town centre and local amenities
This detached two-bedroom bungalow sits on a generous, wrap-around plot just a short, flat walk from Calne town centre. The single-storey layout and dual-aspect living room suit downsizers seeking easy daily living, with two similarly sized double bedrooms overlooking separate garden areas.
The property requires modernisation throughout: finishes, carpets and some fixtures are dated, and the house will benefit from an updating programme to unlock its full potential. Practical positives include double glazing (post-2002), gas central heating with a boiler and radiators, a double garage and off-street parking, and a large private garden laid out for varied use and privacy.
There are some material limitations to note. Broadband speeds are very slow, the property sits in an area classed as deprived, and the property is accessed from an unadopted lane which may affect maintenance responsibility. Council Tax is moderate; there is no flood risk. The home is offered chain free, giving a simpler purchase for buyers prepared to renovate.
Overall this is a sensible opportunity for a buyer wanting single-level living in a spacious plot near town. With renovation, the bungalow could provide comfortable, long-term accommodation or a valuable, updated home for resale.
2 bedroom semi-detached bungalow for sale in Hungerford Road, Calne, SN11 9BH, SN11 — £260,000 • 2 bed • 1 bath • 715 ft²
2 bedroom bungalow for sale in Savernake Drive, Calne, Wiltshire, SN11 — £280,000 • 2 bed • 2 bath • 1012 ft²
2 bedroom detached bungalow for sale in Fairway, Calne, SN11 — £290,000 • 2 bed • 1 bath • 636 ft²
4 bedroom semi-detached bungalow for sale in Oxford Road, Calne, SN11 — £475,000 • 4 bed • 1 bath • 1185 ft²
2 bedroom detached bungalow for sale in Long Barrow Road, Calne, SN11 — £295,000 • 2 bed • 1 bath • 874 ft²
2 bedroom bungalow for sale in The Glebe, Calne, SN11 — £230,000 • 2 bed • 1 bath • 649 ft²






































































