Rare cul-de-sac home with planning consent to expand—ideal for growing families.
South-facing rear garden backing onto open countryside
This well-presented three-bedroom link-detached house sits at the end of a quiet cul-de-sac in Walton, backing onto open countryside. The south-facing rear garden and level lawn are ideal for family life, pets and outdoor play. Driveway parking for up to three cars plus a single garage adds everyday convenience.
The house is spacious and practical: extended living space, separate sitting room, utility area and a stylish family bathroom. It benefits from double glazing (installed before 2002), mains gas heating and an average overall size suitable for growing families. Council tax is described as affordable and local crime levels are low.
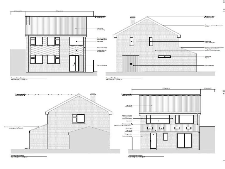
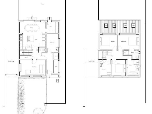
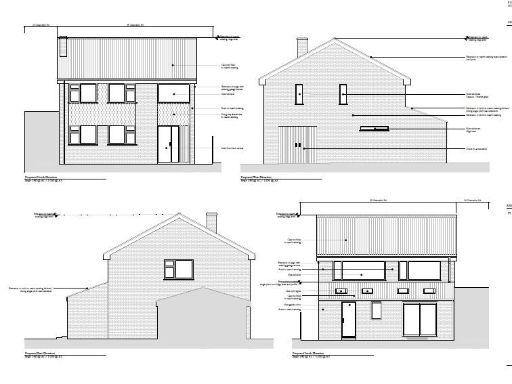
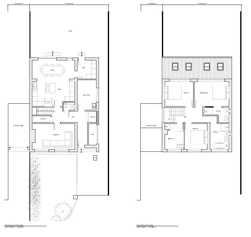
A major advantage is planning consent (Oct 2024) for a two-storey side extension, creating a fourth bedroom, second bathroom and extra reception room — useful to expand living space or increase resale value. Location is strong for families, with several highly rated primary schools nearby and easy access to the A39 and M5 (J23).
Practical drawbacks to note: broadband speeds are slow, and the glazing is older double glazing which may not match modern performance. The house dates from the late 1960s/early 1970s, so buyers should expect some mid-century construction features and routine maintenance. Overall, this is a rare, flexible family home with scope to extend and personalise.
3 bedroom link detached house for sale in Littlefield Close, Walton, BA16 — £340,000 • 3 bed • 2 bath • 680 ft²
3 bedroom link detached house for sale in Hempitts Road, Walton, BA16 — £350,000 • 3 bed • 1 bath • 869 ft²
4 bedroom detached house for sale in Main Street, Walton, BA16 — £575,000 • 4 bed • 2 bath • 2213 ft²
3 bedroom detached bungalow for sale in Main Street, Walton, BA16 — £359,950 • 3 bed • 1 bath • 1359 ft²
3 bedroom terraced house for sale in South Close, Walton, BA16 — £259,950 • 3 bed • 1 bath • 843 ft²
3 bedroom detached house for sale in Brookfield Way, Street , BA16 — £315,000 • 3 bed • 1 bath • 892 ft²














































































































