Renovated rural home with modern energy systems and village tranquillity.
- Three bedrooms with character and attractive stone fireplace
- Solar panels plus 10 kW battery for stored solar power
- Air-source central heating, EPC Band C
- Recently refitted kitchen and shower room
- Garden terraced for views across Clydach Gorge
- Off-street parking space for two cars (allocated area)
- Single shower room only; no separate bath
- Main fuel LPG; accessibility limited by spiral staircase and low ceilings
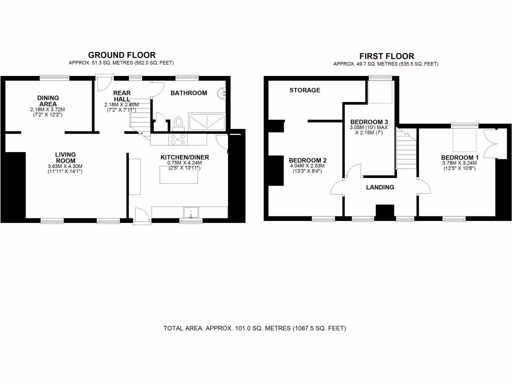
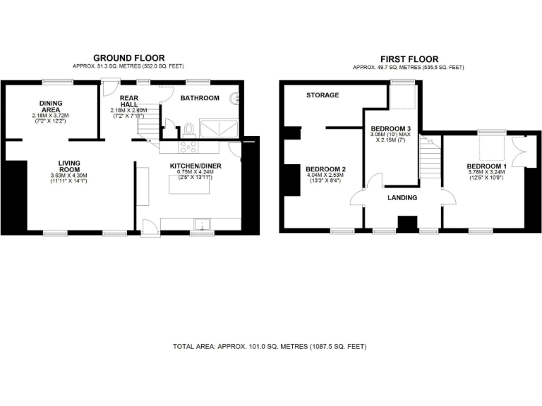
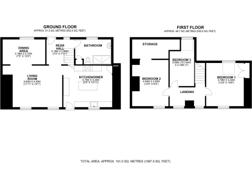
This well-updated three-bedroom terraced cottage blends period character with modern efficiency, set on an elevated plot in the rural hamlet of Lower Gellifellin, six miles from Abergavenny. The living room retains exposed beams and a stone fireplace with a wood-burning stove, while the kitchen and shower room have both been recently refitted. Solar panels with a 10 kW battery and an air-source heat pump provide low-running-cost heating and energy storage.
The garden is attractively terraced to take advantage of views across the Clydach Gorge and offers a useful outdoor space for children and pets. An allocated parking area across the lane provides off-street parking for two cars. The property is offered chain-free and has an average overall size with approximately 1,087 sq ft of accommodation.
Practical points to note: there is a single shower room (no separate bathroom), main heating fuel is LPG (not a community supply), and some rooms have lower ceilings and a spiral staircase, which may affect accessibility. Mobile signal is average and the local area is classified as very deprived, which can influence local services and amenities. Council tax is described as affordable.
Overall, this cottage will suit buyers seeking a characterful rural home with modern energy features and pleasant outlooks, who are comfortable with a village setting and modest internal circulation.
3 bedroom terraced house for sale in 4 Bath Row, Clydach, Abergavenny, NP7 0NF, NP7 — £295,000 • 3 bed • 1 bath • 933 ft²
3 bedroom cottage for sale in Darenfelin, Llanelly Hill, NP7 — £220,000 • 3 bed • 1 bath
3 bedroom detached house for sale in Llanwenarth, Abergavenny, NP7 — £450,000 • 3 bed • 1 bath • 989 ft²
3 bedroom terraced house for sale in Bath Row, Clydach, Abergavenny, NP7 — £254,950 • 3 bed • 1 bath • 874 ft²
3 bedroom detached house for sale in Lower Cwm Nant Gam, Abergavenny, NP7 — £400,000 • 3 bed • 2 bath • 1035 ft²
2 bedroom semi-detached house for sale in 2 Woodland Cottages, Maes Y Gwartha Road, Gilwern, Abergavenny, NP7 0ET, NP7 — £225,000 • 2 bed • 1 bath • 543 ft²


















































































































