Chain-free, affordable starter home close to town amenities and transport.
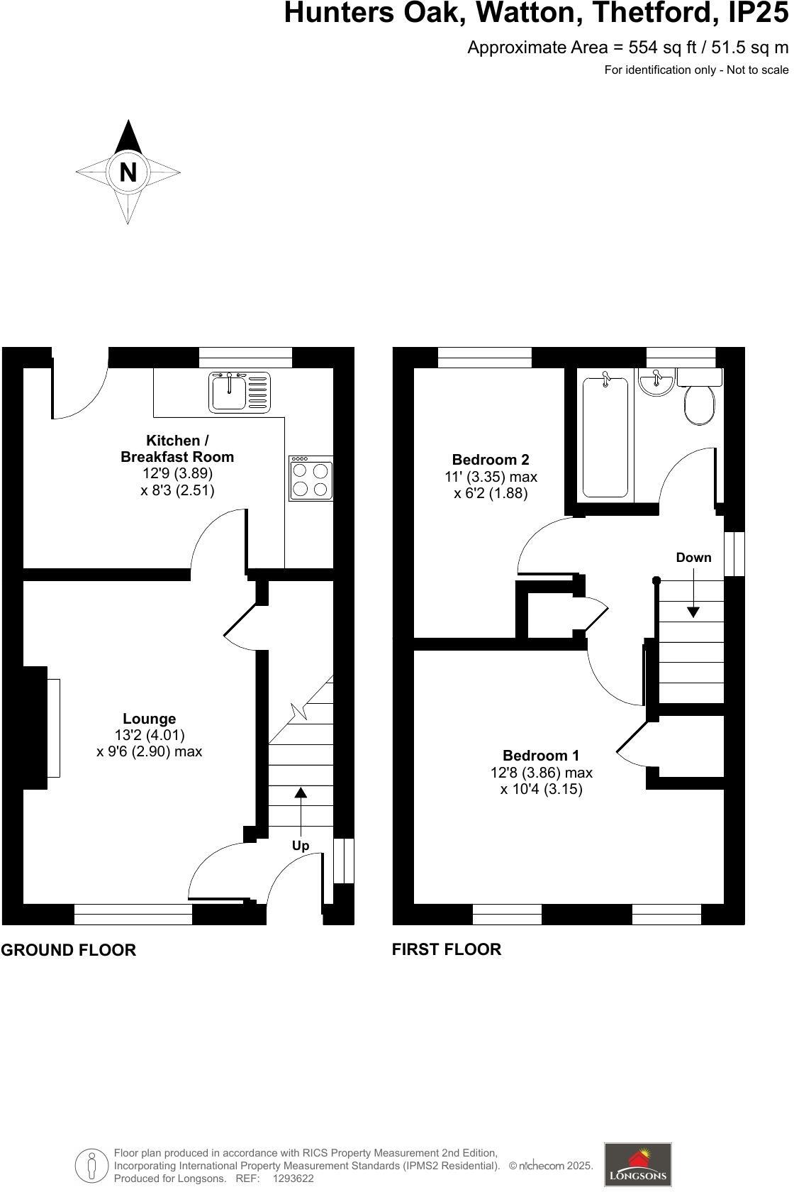
- Two bedrooms with conventional layout and loft access
- Chain-free sale, freehold tenure
- Small overall size: about 549 sq ft
- Single bathroom only; suited to couple or small family
- Dated 1980s kitchen; scope for modernisation
- Off-street parking and fully enclosed rear garden
- Gas central heating and double glazing, EPC D67
- Quiet market-town location with good local amenities
A tidy two-bedroom semi in Watton, offered chain-free and ready for immediate occupation. The house sits on a small plot with off-street parking and an enclosed rear garden — practical for first homes or downsizers wanting low-maintenance outdoor space. The lounge and kitchen/breakfast room provide sensible living space for day-to-day life.
The home benefits from gas central heating, double glazing and a D67 energy rating, keeping running costs reasonable. Built in the early 1990s, the property is structurally conventional with cavity walls and a straightforward traditional layout. Local amenities, weekly market and nearby schools are within easy reach, and transport links give access to Thetford and Norwich.
Some updating is needed: the kitchen dates from the 1980s and will suit buyers happy to modernise. The house is small (approximately 549 sq ft) with a single bathroom, so it’s best suited to couples, first-time buyers or those looking to downsize. No flooding risk is recorded and the property is freehold and chain-free, simplifying purchase.
This is a practical, affordable entry into the Watton market with clear potential to add value by modernising the kitchen and cosmetic finishes. Buyers should check boiler and services as fittings have not been tested and all measurements are approximate.
2 bedroom semi-detached house for sale in Hunters Oak, Watton, IP25 — £170,000 • 2 bed • 1 bath • 549 ft²
2 bedroom terraced house for sale in Tom Milford Place, Watton, IP25 — £170,000 • 2 bed • 1 bath • 716 ft²
2 bedroom semi-detached house for sale in Akrotiri Square, Watton, Thetford, IP25 — £180,000 • 2 bed • 1 bath • 679 ft²
3 bedroom semi-detached house for sale in Norwich Road, Watton, IP25 — £230,000 • 3 bed • 2 bath • 1014 ft²
2 bedroom terraced house for sale in Tom Turley Close, Watton, Thetford, IP25 6GU, IP25 — £160,000 • 2 bed • 1 bath • 652 ft²
1 bedroom house for sale in William Close, Watton, Thetford, Norfolk, IP25 — £130,000 • 1 bed • 1 bath • 563 ft²














































