**Standout Features:**
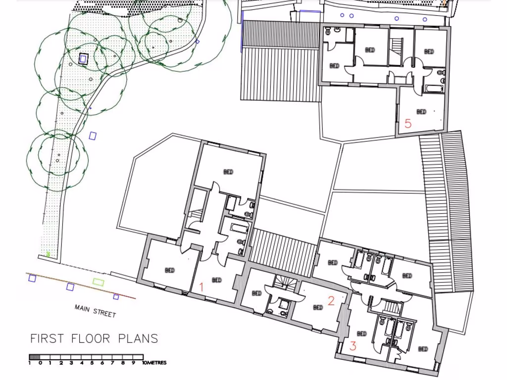
- Development opportunity with Full Planning Permission for conversion into 5 dwellings
- Spacious courtyard-style layout with gardens and off-street parking
- Approx. 750 sqm of accommodation (8072 sqft) across various unit sizes
- Located in the attractive village of Greetham, close to A1 access
- Comprehensive Information Pack available with detailed surveys
**Summary:**
This impressive development plot situated in the heart of Greetham village presents a unique opportunity to create a charming residential community. Encompassing approximately 0.42 acres, the site features a combination of single and two-storey buildings, previously serving as a residential care home and post office, now poised for revitalization. With Full Planning Permission granted for the conversion into 5 individual units, plans allow for a range of layouts catering to different lifestyles, with sizes from a cozy 50 sqm unit to a spacious 218 sqm family home, ensuring broad appeal across potential buyers.
Nestled in picturesque surroundings, the property offers outdoor spaces for each unit as well as parking, making it ideal for families or first-time buyers seeking tranquility close to local amenities. The popular village boasts communal comforts such as two pubs and proximity to the renowned Greetham Valley Golf Club. While the site benefits from excellent access to major transport routes, it may require some renovation to meet modern standards. Take advantage of this rare chance to shape a thriving residential community in a well-connected Rutland location; opportunities like this are rarely on offer.
Land for sale in Development Opportunity, Greetham, Oakham, Rutland LE15 7NL, LE15 — £675,000 • 1 bed • 1 bath • 8071 ft²
Plot for sale in School Lane, Croxton Kerrial, Grantham, NG32 — £185,000 • 1 bed • 1 bath • 1490 ft²
5 bedroom house for sale in Residential Development Opportunity, Grimston, LE14 — £695,000 • 5 bed • 2 bath • 862 ft²
Residential development for sale in Bridge Street, Langham, Oakham, Rutland, LE15 — £400,000 • 1 bed • 1 bath • 3900 ft²
Property for sale in Development Plot, Formally "The Lilacs", LE15 — £490,000 • 1 bed • 1 bath • 1655 ft²
12 bedroom detached house for sale in *** FARM HOUSE & TWO BUILDING PLOTS & 3 ACRES*** Main Street, Thistleton, LE15 — £875,000 • 12 bed • 9 bath










































