**Standout Features:**
- Unique 15th Century Grade II listed former Coach House
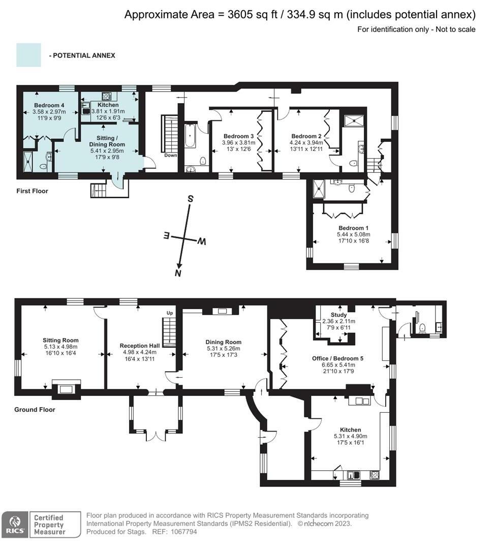
- Spacious accommodation of over 3600 sq. ft. with a wealth of character
- Set within 2.2 acres of delightful gardens and grounds
- 3 double bedrooms, 3 reception rooms, and 3 bathrooms (2 en-suite)
- Potential for a granny annex with separate living, kitchen, and bedroom space
- Scenic countryside views and extensive parking
**Concise Summary:**
Discover the exceptional charm of The Coach House, a unique Grade II listed former Coach House set on approximately 2.2 acres of beautifully landscaped gardens. This spacious property offers over 3600 sq. ft. of versatile living space featuring three double bedrooms, three reception rooms, and three bathrooms, including two en-suites. The main home boasts a family kitchen equipped with high-end appliances and an office area that doubles as a ground-floor bedroom or family room.
An integral feature of the property is the potential granny annex, perfect for multi-generational living or guest accommodations. With stunning views of the picturesque countryside and ample parking, this could be your idyllic family retreat or investment opportunity. While it does present some challenges due to its listed status, the blend of historical charm and modern comforts creates a truly exclusive living experience. Don't miss out on this rare opportunity—properties like this are not available for long!
5 bedroom house for sale in Abbotsham Court, Bideford, EX39 — £650,000 • 5 bed • 4 bath • 1647 ft²
4 bedroom semi-detached house for sale in Abbotsham Court, Abbotsham, Bideford, EX39 — £650,000 • 4 bed • 4 bath • 3600 ft²
5 bedroom detached house for sale in East Down, Barnstaple, Devon, EX31 — £695,000 • 5 bed • 3 bath • 4448 ft²
6 bedroom detached house for sale in Abbotsham, Bideford, EX39 — £1,875,000 • 6 bed • 5 bath • 4000 ft²
4 bedroom detached house for sale in Filleigh, EX32 — £750,000 • 4 bed • 3 bath • 2786 ft²
14 bedroom detached house for sale in Landkey Road, Barnstaple, Devon, EX32 — £1,500,000 • 14 bed • 10 bath • 10190 ft²


















































































































































