Chain-free three-bedroom bungalow with private garden and loft extension potential..
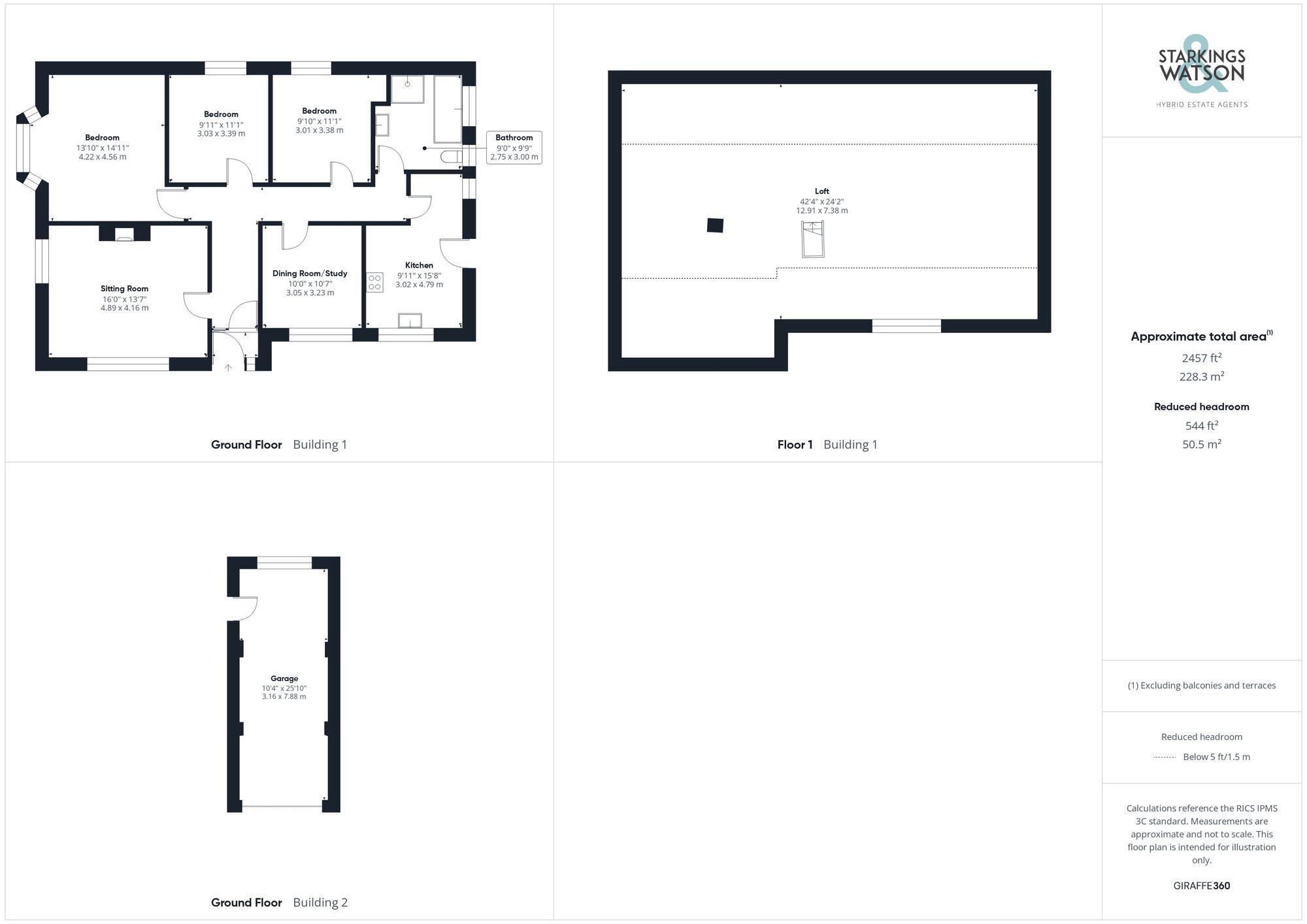
No chain; immediate vacant possession available|Detached bungalow on a large, private corner plot|Over 1,100 sq ft (stms) with three bedrooms and two reception rooms|Refitted modern family bathroom; classic-style fitted kitchen|Scope to extend or convert loft (subject to planning permission)|Garage small/narrow (approx 8'5" x 3'3") and limited for large vehicles|Slow broadband speeds in the area; single bathroom only|Very low local crime; walking distance to shops and good schools
This detached three-bedroom bungalow in Blofield Heath offers single-storey living, privacy and immediate move-in readiness — and it is chain free. Set on a large corner plot screened by mature hedging, the home provides over 1,100 sq ft (stms) of accommodation with private, non-overlooked gardens and generous off-street parking including a single garage.
The layout suits downsizers or anyone seeking ground-floor convenience: a dual-aspect sitting room with a brick fireplace, separate dining room/study, three bedrooms and a refitted modern family bathroom. Hardwood flooring runs through much of the house and the kitchen has been updated in a classic style with integrated appliances and tiled splashbacks for easy maintenance.
Practical benefits include mains gas central heating, double glazing (post-2002), very low local crime and nearby good primary and secondary schools. There is clear potential to add value: the bungalow’s central position on the plot offers scope to extend or convert the loft (subject to planning), making it attractive to buyers wanting future flexibility.
Be aware of a few limitations: broadband speeds in the area are slow, the property has a single family bathroom, and the detached garage is compact. Some internal areas show dated styling and could benefit from cosmetic updating to match the rest of the newly renovated elements.
3 bedroom detached bungalow for sale in Skedge Way, Blofield Heath, Norwich, NR13 — £475,000 • 3 bed • 2 bath • 1129 ft²
4 bedroom detached bungalow for sale in Skedge Way, Blofield, NR13 — £365,000 • 4 bed • 2 bath • 1289 ft²
3 bedroom detached bungalow for sale in St. Laurence Avenue, Brundall, Norwich, NR13 — £240,000 • 3 bed • 1 bath • 710 ft²
3 bedroom detached bungalow for sale in Borton Road, Blofield Heath, Norwich, NR13 — £290,000 • 3 bed • 1 bath • 825 ft²
3 bedroom detached bungalow for sale in Blofield Corner Road, Blofield Heath, Norwich, NR13 — £500,000 • 3 bed • 1 bath • 1227 ft²
3 bedroom detached bungalow for sale in Skedge Way, Blofield, NR13 — £335,000 • 3 bed • 1 bath • 1034 ft²


















































































