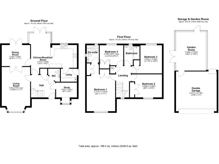
Four double bedrooms including en-suite primary bedroom
Generous plot with large south-facing rear garden
Versatile garden room plus large storage shed
Detached double garage with electric roller door
Driveway parking for several vehicles
EPC rating D — energy upgrades may be needed
Council Tax band F — expensive
Located near M4 and Cardiff, fast broadband and excellent signal
A substantial four-double-bedroom detached house set on a large plot in the sought-after Pencoedtre Village development. The home offers generous family living across two floors, including an open-plan kitchen/breakfast room, separate dining and living rooms, a study and a versatile garden room that extends usable space into the south-facing garden. Elevated rear views towards the Bristol Channel add a pleasant outlook.
Practical strengths include a detached double garage with electric roller door, a wide driveway for several cars, mains gas central heating with a Worcester boiler, double glazing and a Megaflo cylinder for ample hot water. The property dates from c.1996–2002 and presents as well maintained internally with fitted wardrobes, contemporary bathrooms and useful utility space.
Notable considerations: the EPC rating is D and the property sits in Council Tax band F (expensive). The wider area shows higher levels of deprivation despite comfortable suburbia classification locally, which may affect future resale in some buyer segments. Buyers seeking immediate modernisation or higher energy performance should factor potential upgrade costs into offers.
Located with good road links to Cardiff city centre and the M4, plus fast broadband and excellent mobile signal, the house will suit families wanting space, parking and outdoor amenity close to urban centres. Viewing is recommended to appreciate room proportions, the south-facing rear garden and the elevated channel views.



























































































































