Contemporary detached house with large garden and garage in quiet cul-de-sac.
Four bedrooms including master with dressing room
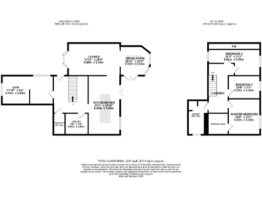
This well-presented four-bedroom detached house offers comfortable, contemporary family living across about 1,587 sq ft. The ground floor layout centres on a large open kitchen-diner, generous lounge and separate dining room, with a versatile fourth room currently used as a gym that could serve as a home office or additional bedroom. A master suite with dressing room plus two further bedrooms gives practical sleeping arrangements for a growing family.
Outside, a sizeable landscaped rear garden, private driveway and integral garage provide useful outdoor space and secure parking. The home benefits from modern construction (post-2007), mains gas central heating, double glazing and fast broadband and excellent mobile signal — practical features for everyday life and remote working. Local primary and secondary schools rated 'Good' are within easy reach, and nearby shops and amenities make daily errands straightforward.
Buyers should note the wider area metrics: the neighbourhood is classed as deprived with an area profile of social renters, and recorded crime levels are average. Council Tax is moderate and the property is freehold. The property appears ready to move into, but a buyer survey is recommended to confirm condition and services (double glazing install date and heating not tested are not confirmed).
Overall this is a flexible, contemporary family home in a quiet cul-de-sac with strong layout and garden space. It will suit families seeking turn-key accommodation with scope to reconfigure rooms if a fifth bedroom or different layout is required.
 4 bedroom detached house for sale in Cherry Tree Close, Bilton, Hull, HU11 — £310,000 • 4 bed • 2 bath • 920 ft²
 4 bedroom detached house for sale in Cherry Tree Close, Bilton, Hull, HU11 — £310,000 • 4 bed • 2 bath • 920 ft² 3 bedroom detached house for sale in Cherry Tree Close, Bilton, HU11 — £256,950 • 3 bed • 1 bath • 996 ft²
 3 bedroom detached house for sale in Cherry Tree Close, Bilton, HU11 — £256,950 • 3 bed • 1 bath • 996 ft² 4 bedroom detached house for sale in Main Road, Bilton, Hull, HU11 — £350,000 • 4 bed • 1 bath • 1026 ft²
 4 bedroom detached house for sale in Main Road, Bilton, Hull, HU11 — £350,000 • 4 bed • 1 bath • 1026 ft² 4 bedroom detached house for sale in Cherry Tree Close, Bilton, Hull, East Yorkshire, HU11 — £399,950 • 4 bed • 3 bath • 1893 ft²
 4 bedroom detached house for sale in Cherry Tree Close, Bilton, Hull, East Yorkshire, HU11 — £399,950 • 4 bed • 3 bath • 1893 ft² 2 bedroom link detached house for sale in Galfrid Road, Bilton, Hull, East Yorkshire, HU11 — £199,950 • 2 bed • 2 bath • 1067 ft²
 2 bedroom link detached house for sale in Galfrid Road, Bilton, Hull, East Yorkshire, HU11 — £199,950 • 2 bed • 2 bath • 1067 ft² 3 bedroom detached bungalow for sale in Main Road, Bilton, HU11 — £370,000 • 3 bed • 2 bath • 1566 ft²
 3 bedroom detached bungalow for sale in Main Road, Bilton, HU11 — £370,000 • 3 bed • 2 bath • 1566 ft²






















































































































































