Bright modern layout with convenient parking and station access.
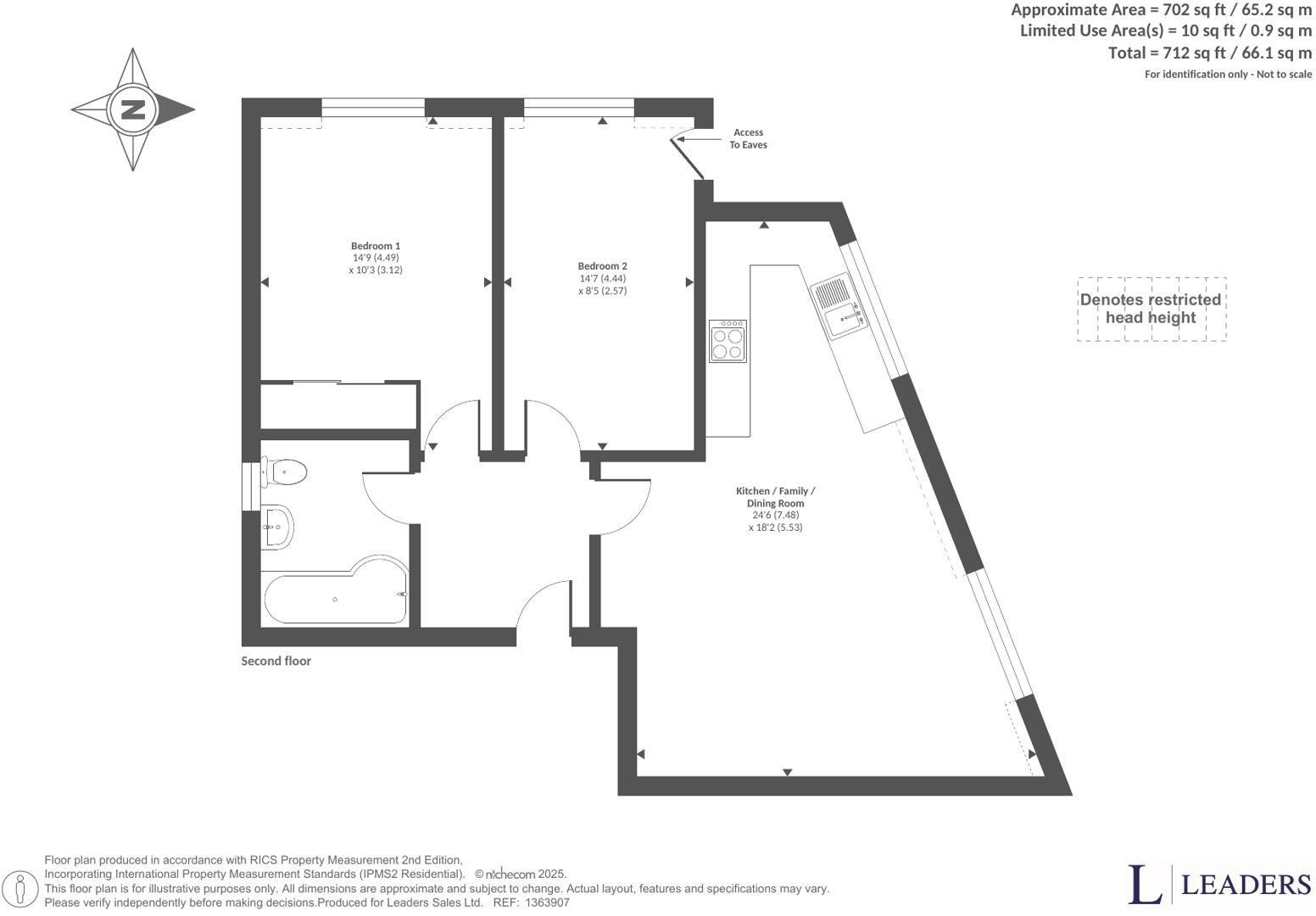
Top-floor two-bedroom apartment with open-plan living
This bright two-bedroom top-floor apartment sits in a small, low-rise development in the heart of Hersham village. The open-plan living room, modern kitchen and bathroom, and high ceilings create a light, contemporary feel suitable for first-time buyers, downsizers or buy-to-let purchasers. Allocated off-street parking and secure entry add everyday convenience.
Practical running costs are clear: a service charge of £1,625.65 and ground rent of £250 per year, with council tax in Elmbridge Band D. The property benefits from mains gas central heating and double glazing, but the building dates from the late 1960s–1970s and external cavity walls are assumed to lack added insulation — factor potential energy-efficiency improvements into your plans.
Location is a strong asset. Village shops and Hersham Green are about 0.3 miles away, and Walton-on-Thames mainline station is approximately 0.7 miles, making commuting straightforward. Local schools include several rated Good and a top 10% primary, which supports long-term resale appeal.
Note the lease details show possible discrepancies in the supplied data; buyers should confirm the exact years remaining. The apartment is offered chain-free, so completion can be straightforward for a confident first purchase or a quick let.
1 bedroom flat for sale in Molesey Road, Hersham , KT12 — £284,000 • 1 bed • 1 bath • 594 ft²
2 bedroom flat for sale in Greenwood Place, Walton-On-Thames, Surrey, KT12 — £300,000 • 2 bed • 1 bath • 615 ft²
2 bedroom flat for sale in Alderson Grove, Hersham, Walton-On-Thames, KT12 — £395,000 • 2 bed • 1 bath • 864 ft²
1 bedroom flat for sale in Mole Road, Hersham, KT12 — £290,000 • 1 bed • 1 bath • 517 ft²
3 bedroom apartment for sale in Mole Road, Walton-On-Thames, Surrey, KT12 — £395,000 • 3 bed • 2 bath • 764 ft²
1 bedroom flat for sale in Aspect Place, Hersham, Surrey, KT12 — £279,950 • 1 bed • 1 bath • 530 ft²






















































































