OX3 9SJ - 2 bedroom town house for sale in Barton, Oxford, OX3

View on Property Piper

2 bedroom town house for sale in Barton, Oxford, OX3

Summary - 23 ALDBARTON DRIVE HEADINGTON OXFORD OX3 9SJ

2 bed 1 bath Town House

**Standout Features:**
- Two well-proportioned bedrooms
- Spacious living room with modern finishes
- Private mature rear garden
- Driveway parking for multiple vehicles
- Chain-free sale
- Fast broadband and excellent mobile signal

**Potential Concerns:**
- Above average crime rate in the area
- Needs cosmetic updates to maximize its full potential

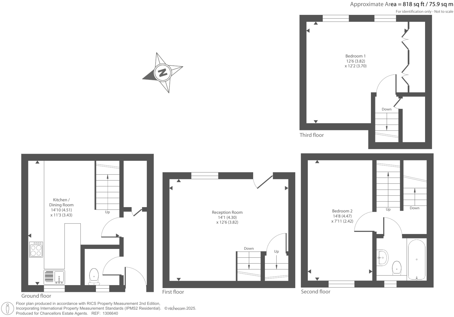
Discover this charming semi-detached town house nestled in a vibrant community of OX3 9SJ, perfect for first-time buyers or young families. This home offers 818 square feet of well-arranged living space that includes a fitted kitchen, a good-sized living room, two comfortable bedrooms, and a family bathroom, all designed for cozy living. The standout feature is the private garden—a serene escape for relaxation or entertaining, complemented by ample driveway parking for your convenience.

While the property is in a good overall condition, some cosmetic updates may be necessary to personalize it to your taste. The neighborhood is quite lively, although potential buyers should be aware of the above-average crime rates. With no onward chain, you could move in quickly and start putting down roots in this community.

Nearby schools—including the top-rated Headington School—provide excellent education options, making this an ideal locale for families. Whether you're looking for a comfortable home or a smart investment opportunity, this property has the potential for both. Don't miss your chance to make this house your home—properties like this don't stay on the market for long!

Property Details

Image Descriptions

Floorplan Description

Rooms

Textual Property Features

Detected Visual Features

EPC Details

Nearby Schools

Nearest Bars And Restaurants

,,,,}

Nearest General Shops

,,}

Nearest Grocery shops

,,}

Nearest Supermarkets

,,}

Nearest Religious buildings

,,}

Nearest Medical buildings

,,,}

Nearest Leisure Facilities

,,,,}

Nearest Tourist attractions

,,}

Nearest Train stations

,,,,}

Nearest Bus stations and stops

,,,,}

Nearest Hotels

,,}

Tags

Local Market Stats

AirBnB Data

Similar Properties

Meta

High Res Images

Compatible Images

Low res Images

Thumbnails

Raw Images

High Res Floorplan Images

Compatible Floorplan Images

Low res Floorplan Images

FloorplanImages Thumbnail

Raw Floorplan Images