EX10 0QS - 3 bedroom detached house for sale in Davids Close, Sidbury,…

View on Property Piper

3 bedroom detached house for sale in Davids Close, Sidbury, Sidmouth, Devon, EX10

Summary - 9 DAVIDS CLOSE SIDBURY SIDMOUTH EX10 0QS

3 bed 2 bath Detached

**Standout Features:**
- Detached three-bedroom home in a serene cul-de-sac
- Countryside views and well-maintained rear garden
- Spacious conservatory and living spaces
- Master bedroom with en-suite and additional modern bathroom
- Garage with remote control and off-road parking
- Located near amenities in the village of Sidbury

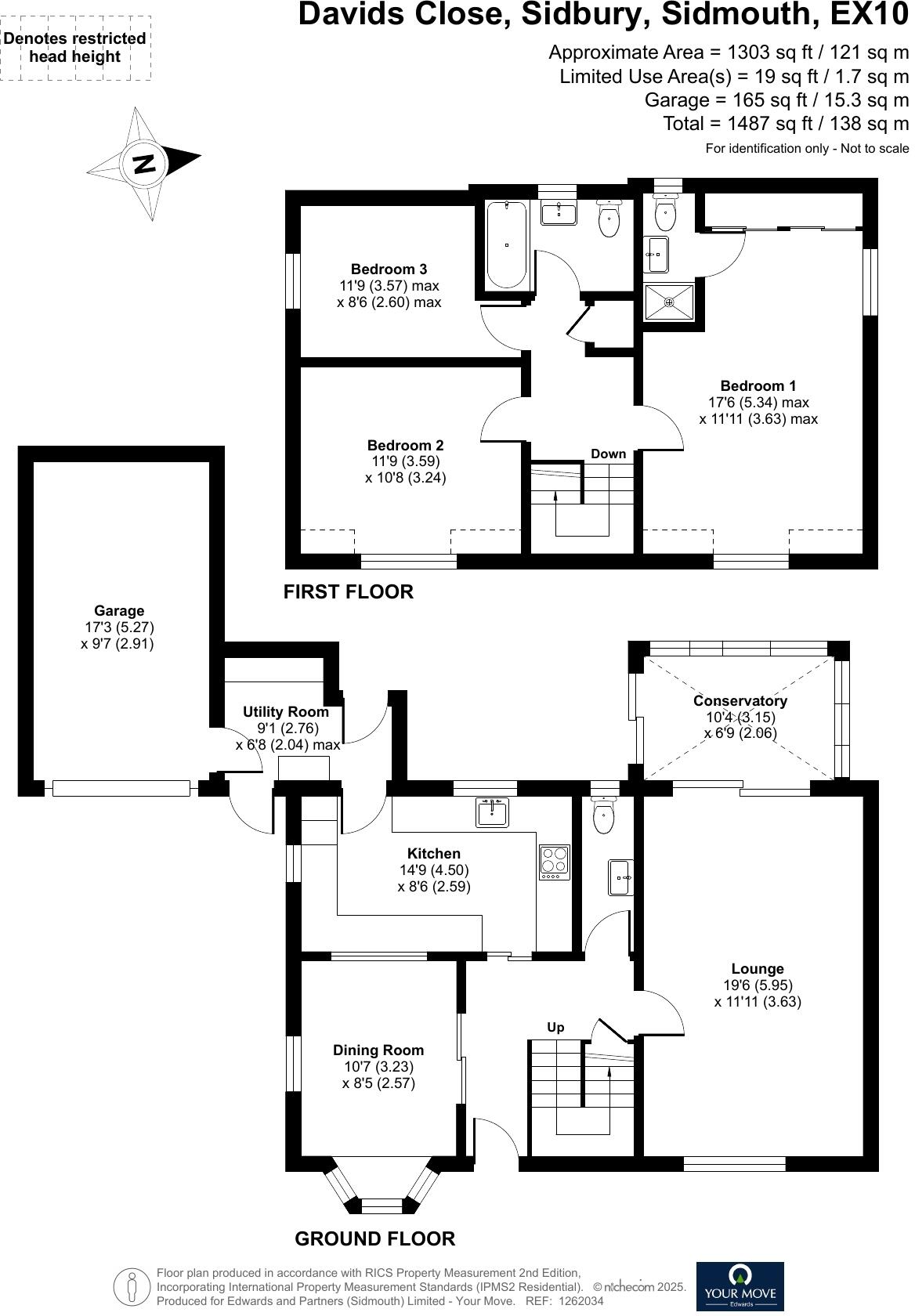
Nestled within a quiet cul-de-sac in the picturesque village of Sidbury, this impressive three-bedroom detached home offers an idyllic lifestyle with stunning countryside views. Boasting a sizeable 1,303 sq ft layout, the property features a light-filled sitting room with a cozy gas fireplace and sliding doors that lead to a spacious conservatory, perfect for enjoying the well-maintained garden. The heart of the home includes a dual aspect dining room and a well-equipped kitchen, ideal for family gatherings.

Upstairs, the master bedroom delights with fitted wardrobes and an en-suite, alongside two additional bedrooms and a stylish modern bathroom. The low-maintenance outdoor space is beautifully designed and surrounded by established greenery, providing privacy for outdoor dining and relaxation. With a detached garage and ample parking, this home caters to families, first-time buyers, or investors looking for rental potential in a tranquil and affluent setting. Just a short distance from local amenities, countryside walks, and primary education options, this property is a rare find—act fast to secure your future in this comfortable, family-friendly home.

Property Details

Image Descriptions

Floorplan Description

Rooms

Textual Property Features

Detected Visual Features

EPC Details

Nearby Schools

Nearest Bars And Restaurants

,,,,}

Nearest General Shops

,,}

Nearest Grocery shops

,,}

Nearest Supermarkets

,,}

Nearest Religious buildings

,,}

Nearest Medical buildings

,,,}

Nearest Airports

}

Nearest Leisure Facilities

,,,,}

Nearest Tourist attractions

,,}

Nearest Train stations

,,,,}

Nearest Bus stations and stops

,,,,}

Nearest Hotels

,,}

Tags

Local Market Stats

AirBnB Data

Similar Properties

Meta

High Res Images

Compatible Images

Low res Images

Thumbnails

Raw Images

High Res Floorplan Images

Compatible Floorplan Images

Low res Floorplan Images

FloorplanImages Thumbnail

Raw Floorplan Images