Contemporary 4-bed family home with garage, garden and easy access to schools and parks.
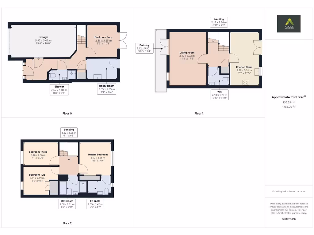
Four bedrooms and three bathrooms across three floors
Located in a quiet residential pocket of Branston close to Branston Water Park, this modern four-bedroom semi-detached home offers practical family living across three floors. Built in 2021, the house benefits from contemporary construction, good thermal performance and mains gas heating—so it’s ready to move into with minimal immediate maintenance.
The layout includes a fitted kitchen-diner, three bathrooms and flexible living space ideal for families needing separate bedrooms and study space. An integral garage and private driveway provide secure parking, while the rear garden and patio give an outdoor area for children and pets; the plot is modest in size, so it’s low-maintenance rather than extensive.
Local amenities, good primary and secondary schools (including highly rated John Taylor High), and fast broadband make this a practical choice for working professionals and families. Public transport links and local shops are within easy reach, supporting everyday convenience.
Buyers should note the area records above-average crime statistics, which may affect perceptions of security; consider local crime prevention measures. The small plot limits garden expansion, and the three-storey layout may be less convenient for those with limited mobility. Overall, this is a modern, energy-efficient home that suits families seeking contemporary accommodation in a well-serviced suburb.
4 bedroom town house for sale in Olive Close, Branston, Burton-on-trent, DE14 — £300,000 • 4 bed • 3 bath • 1614 ft²
4 bedroom detached house for sale in Rowan Drive, Branston, Burton-On-Trent, DE14 — £449,999 • 4 bed • 2 bath • 1475 ft²
4 bedroom detached house for sale in Acacia Lane,
Branston,
Burton-On-Trent,
DE14 3FW, DE14 — £390,000 • 4 bed • 1 bath • 1371 ft²
4 bedroom detached house for sale in Acacia Lane, Branston, DE14 — £350,000 • 4 bed • 2 bath • 1090 ft²
3 bedroom house for sale in Thorntree Lane, Branston, Burton-On-Trent, DE14 — £259,000 • 3 bed • 2 bath • 874 ft²
3 bedroom semi-detached house for sale in Lichfield Road, Branston, Burton-on-Trent, Staffordshire, DE14 — £230,000 • 3 bed • 1 bath • 1016 ft²


































































































