Characterful three-bed home steps from seafront and shops.
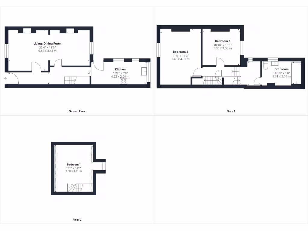
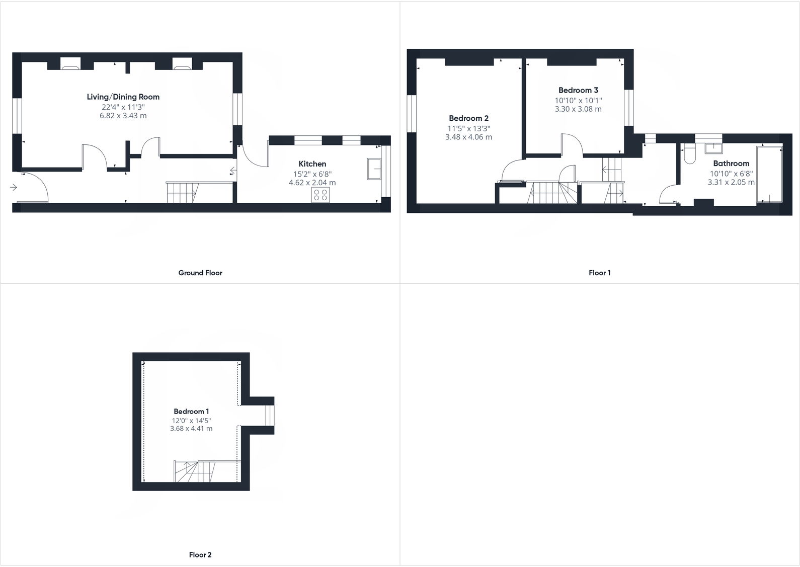
Three double bedrooms across three floors
This three-bedroom Victorian mid-terrace offers an accessible town-centre base for first-time buyers looking for character and convenience. Arranged over three floors, the home combines original period details with contemporary fittings — plantation shutters, two open fireplaces and a modern fitted kitchen with integrated appliances — all offered chain-free and ready to move into.
Living space is practical and well configured: a through lounge/diner spans the ground floor, the kitchen opens to a low-maintenance courtyard garden that doubles as a private car port, and three double bedrooms occupy the upper floors. The property is freehold, has double glazing (installed before 2002), mains gas central heating and a modern family bathroom; broadband is fast and mobile signal excellent.
Buyers should note the area context: the property sits in a busy, urban town-centre location with very high local crime and wider area deprivation indicators. The plot and garden are small, and the original solid brick walls are likely uninsulated — potential buyers interested in energy upgrades should factor retrofit costs. Despite that, proximity to the seafront, shops, rail and bus links, plus off-street parking, make this a convenient, practical home with good rental or owner-occupier potential.
Overall, this is a compact, characterful Victorian townhouse that suits first-time buyers seeking a town-centre lifestyle or investors after a straightforward, chain-free purchase with immediate letting or let-to-live options.
 3 bedroom terraced house for sale in Graham Road, Worthing, West Sussex, BN11 — £400,000 • 3 bed • 1 bath • 1195 ft²
 3 bedroom terraced house for sale in Graham Road, Worthing, West Sussex, BN11 — £400,000 • 3 bed • 1 bath • 1195 ft² 3 bedroom terraced house for sale in Stanley Road, Worthing, BN11 1DT, BN11 — £465,000 • 3 bed • 1 bath • 833 ft²
 3 bedroom terraced house for sale in Stanley Road, Worthing, BN11 1DT, BN11 — £465,000 • 3 bed • 1 bath • 833 ft² 3 bedroom terraced house for sale in West Street, Worthing, BN11 — £250,000 • 3 bed • 1 bath • 914 ft²
 3 bedroom terraced house for sale in West Street, Worthing, BN11 — £250,000 • 3 bed • 1 bath • 914 ft² 3 bedroom terraced house for sale in Graham Road , Worthing, BN11 — £350,000 • 3 bed • 1 bath • 1036 ft²
 3 bedroom terraced house for sale in Graham Road , Worthing, BN11 — £350,000 • 3 bed • 1 bath • 1036 ft² 3 bedroom terraced house for sale in Stanley Road, Worthing, BN11 — £400,000 • 3 bed • 1 bath • 731 ft²
 3 bedroom terraced house for sale in Stanley Road, Worthing, BN11 — £400,000 • 3 bed • 1 bath • 731 ft² 3 bedroom terraced house for sale in Westcourt Road, Worthing, BN14 7DP, BN14 — £450,000 • 3 bed • 1 bath • 954 ft²
 3 bedroom terraced house for sale in Westcourt Road, Worthing, BN14 7DP, BN14 — £450,000 • 3 bed • 1 bath • 954 ft²






















































