Bright family home with garage, garden and modern living spaces.
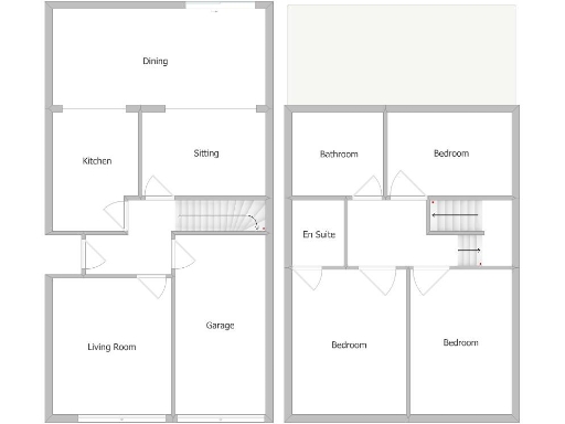
Extended open-plan kitchen/dining/family room with patio doors to garden
South-facing private garden with lawn, paved patio and shed
Three double bedrooms; master bedroom includes en-suite
Luxury family bathroom; modern fixtures and tiled walls
Double driveway, integral garage with power, lighting and EV charging point
Chain free sale; freehold tenure for straightforward purchase
Approx 856 sq ft — average-sized family accommodation
Local broadband speeds are slow; may impact home working or streaming
This extended three-bedroom semi-detached house on Easedale Drive is presented in excellent order and offered chain free — a practical choice for growing families wanting move-in readiness. The ground floor features a stunning open-plan kitchen/dining/family room that opens onto a south-facing garden, creating a bright, sociable heart to the home. An integral garage, double driveway and an EV charging point add genuine everyday convenience.
Upstairs there are three double bedrooms, including a master with en-suite, plus a luxury family bathroom. The layout and finishes lean modern and low-maintenance, with wood-effect flooring downstairs and contemporary sanitaryware throughout. The property sits on a decent plot in a very affluent area with low crime and good local schools nearby.
Practical details to note: the house is freehold with an approximate internal area of 856 sq ft — an average-sized family home rather than a large detached property. Broadband speeds are slow in the area, which may affect home working or heavy-streaming households. Overall, this is a tidy, well-updated family home with good outdoor space and parking, ready for an early move.
3 bedroom semi-detached house for sale in Liverpool Road, Southport, Merseyside, PR8 — £375,000 • 3 bed • 1 bath • 1379 ft²
3 bedroom semi-detached house for sale in Unit Road, Southport, PR8 3NL, PR8 — £300,000 • 3 bed • 2 bath • 837 ft²
3 bedroom semi-detached house for sale in Heathfield Road, Birkdale, Southport, PR8 — £220,000 • 3 bed • 1 bath • 882 ft²
3 bedroom semi-detached house for sale in Kendal Way, Southport, Merseyside, PR8 — £210,000 • 3 bed • 1 bath • 913 ft²
2 bedroom bungalow for sale in Pinfold Lane, Ainsdale, Merseyside, PR8 — £250,000 • 2 bed • 2 bath • 1245 ft²
4 bedroom detached house for sale in Hillsview Road, Southport, PR8 — £510,000 • 4 bed • 3 bath • 1852 ft²














































































