Ready income property near town centre and transport links.
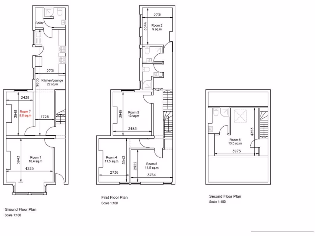
Six ensuite and communal rooms configured as Sui-generis HMO
A ready-made HMO investment in Ilkeston, this six-room mid-terrace is presented to a high standard and already configured for rental use. The property benefits from modern communal kitchen and bathrooms, gas central heating, an HMO licence and a fire panel—features that reduce near-term setup work for a new owner.
Currently let to professional tenants on ASTs and producing an annual rent of £35,100, the house offers immediate income and long-term upside. It sits close to the town centre, shops and transport links, with fast broadband and excellent mobile signal—practical advantages for tenants and managers.
Practical considerations: the plot is small with on-street parking only, and the property is a solid-brick Victorian build with no known cavity insulation (assumed), which can affect running costs. A potential seventh bedroom may be possible subject to planning. Buyers should verify installation dates of glazing and appliances and confirm compliance details before purchase.
This is aimed at investors seeking an operational HMO with low void risk and existing income. The combination of town-centre location, modern communal spaces and a current rental contract makes it straightforward to manage, while modest maintenance and possible planning changes offer future value-add opportunities.
6 bedroom semi-detached house for sale in Gregory Street, Ilkeston, Derbyshire, DE7 — £305,000 • 6 bed • 5 bath • 1798 ft²
6 bedroom terraced house for sale in Mundy Close, Derby, Derbyshire, DE1 — £349,950 • 6 bed • 6 bath • 1353 ft²
6 bedroom terraced house for sale in Gerard Street North, Derby, DE1 — £280,000 • 6 bed • 3 bath • 1680 ft²
6 bedroom house share for sale in Stone Hill Road, Derby, DE23 — £300,000 • 6 bed • 6 bath • 797 ft²
9 bedroom town house for sale in Charnwood Street, Derby, Derbyshire, DE1 2GU, DE1 — £360,000 • 9 bed • 4 bath • 2315 ft²
6 bedroom semi-detached house for sale in Bonsall Street, Long Eaton, NG10 — £450,000 • 6 bed • 2 bath • 2078 ft²






















































































































































