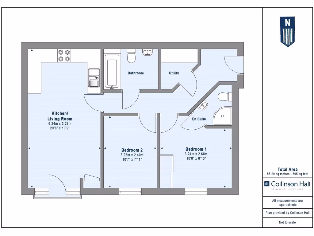
Low-maintenance two-bedroom home near St Albans amenities and transport links.
- Two double bedrooms, principal with en suite
- Open-plan living room with patio doors to balcony
- Residents’ off-street parking and undercroft access
- EPC rating C (80); gas central heating, double glazing
- Leasehold with c.130 years remaining (from 2005)
- Currently tenanted — viewings may be restricted
- Small overall internal size; no private garden
- Council Tax Band D
This well-presented two-double-bedroom apartment offers contemporary open-plan living within easy reach of St Albans city centre. The living space is bright thanks to patio doors leading to a small balcony and a modern fitted kitchen with integrated appliances. The principal bedroom benefits from an en suite shower room, with a separate family bathroom serving the second bedroom.
Practical features include residents’ off-street parking, double glazing and gas central heating via a boiler and radiators. The flat sits in a purpose-built block completed in the mid-2000s, with an Energy Performance Certificate of C (80) and a council tax band D.
Important facts: the property is leasehold with approximately 130 years remaining and is currently tenanted, so viewings may be limited. The apartment is modest in overall size and has no private garden, which suits buyers seeking low-maintenance urban living or investors looking for a straightforward rental opportunity.
This home is a sensible option for first-time buyers wanting a modern, low-maintenance base close to shops, transport links and good local schools. It also appeals to investors seeking an easy-to-manage two-bedroom flat in a well-connected St Albans location.
2 bedroom flat for sale in Charrington Place, St. Albans, Hertfordshire, AL1 — £425,000 • 2 bed • 2 bath • 884 ft²
2 bedroom apartment for sale in Charrington Place, St. Albans, Hertfordshire, AL1 — £450,000 • 2 bed • 2 bath • 748 ft²
2 bedroom flat for sale in Wain Close, St. Albans, Hertfordshire, AL1 — £475,000 • 2 bed • 2 bath • 720 ft²
2 bedroom apartment for sale in Carlisle Avenue, St. Albans, Hertfordshire, AL3 — £350,000 • 2 bed • 1 bath • 676 ft²
2 bedroom apartment for sale in Charrington Place, St Albans, AL1 — £500,000 • 2 bed • 2 bath • 787 ft²
1 bedroom flat for sale in Grosvenor Road, St. Albans, Hertfordshire, AL1 — £290,000 • 1 bed • 1 bath • 555 ft²










































