Period charm with large south garden and private parking in tranquil hamlet.
Four bedrooms and two reception rooms, recently refurbished throughout
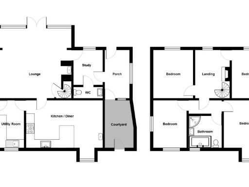
Emlett Cottage is a roomy four-bedroom period home set in a peaceful hamlet on Latteridge Lane. Recently refurbished throughout, the cottage keeps character features — exposed beams, original latch doors and working fireplaces — while adding double glazing and updated fittings for comfortable family living. The rear garden faces south and, together with a long grassed strip, gives unusually generous outdoor space for a cottage.
Practical everyday living is supported by a large kitchen/diner, dedicated study/snug and useful utility room. There is off-street parking via rear vehicular access, making countryside life more convenient for commuters and families. Mobile signal and broadband speeds are reported excellent and fast, so home working is straightforward.
Buyers should note some material facts: heating is oil-fired (not a communal supply), the property sits on stone walls likely without cavity insulation, and the house is served by a private sewage treatment unit. The narrow, steep winder staircase to the first floor could be difficult for less mobile occupants, and there is a single main bathroom serving four bedrooms. Council Tax falls in an above-average band (Band E). These are practical considerations against an otherwise attractively refurbished cottage in a very affluent rural setting.
3 bedroom cottage for sale in Down Road, Alveston, BS35 — £440,000 • 3 bed • 1 bath • 1202 ft²
4 bedroom terraced house for sale in Bitterwell Close, Coalpit Heath, Bristol, Gloucestershire, BS36 — £425,000 • 4 bed • 1 bath • 1371 ft²
5 bedroom cottage for sale in Crossways Lane, Thornbury, South Gloucestershire, BS35 — £935,000 • 5 bed • 2 bath • 2334 ft²
4 bedroom cottage for sale in Northwick Road, Pilning, BS35 — £575,000 • 4 bed • 2 bath • 1097 ft²
5 bedroom house for sale in Nibley Lane, Iron Acton, Bristol, Gloucestershire, BS37 — £1,195,000 • 5 bed • 1 bath • 3124 ft²
4 bedroom cottage for sale in Moorslade Lane, Falfield, GL12 — £695,000 • 4 bed • 2 bath • 1836 ft²






























































































































