Sunny central Lewes home with private courtyard and quick access to station.
Grade II listed character cottage with original features preserved
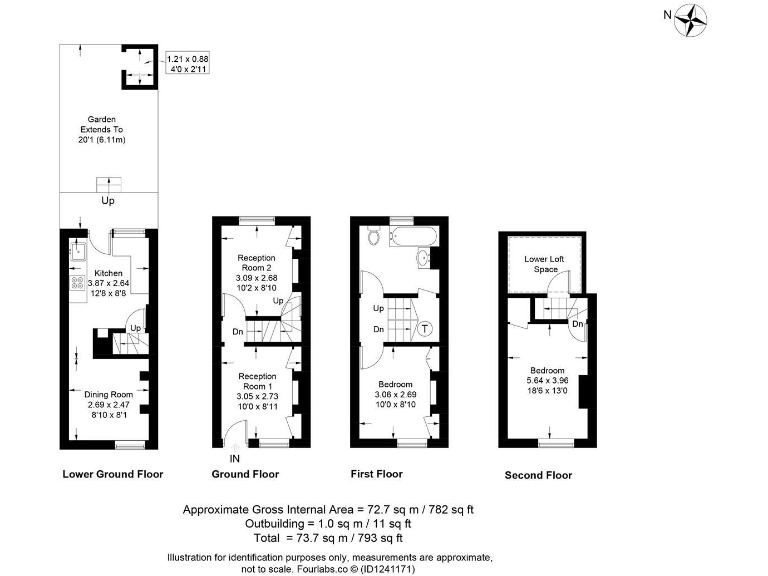
This Grade II listed terraced cottage on Castle Banks offers compact, characterful living in the heart of Lewes. Arranged over multiple levels, the home retains period features—sash windows, exposed beams and cast-iron fireplaces—and benefits from a sunny, low-maintenance rear courtyard. Its central location places shops, cafes and the mainline station within easy walking distance, with the South Downs National Park on the doorstep.
Practical positives include gas central heating, double glazing (pre-2002) and a private courtyard garden with a garden shed and high privacy. The property is offered freehold and with no onward chain, making it suitable for buyers wanting a quick move-in or a town-centre pied-à-terre. Train links to London and Brighton are a short walk away, useful for commuters.
Notable constraints are material and should be considered: the Grade II listing will restrict external and some internal alterations, potentially complicating extensions or full modernisation. The house has a narrow, vertical layout across four floors and a small plot, which may not suit those wanting large open-plan ground-floor living or substantial outdoor space. Broadband speeds are slow locally and the area records above-average crime statistics; purchasers may wish to investigate connectivity and security measures.
This cottage will suit buyers seeking a character-rich, highly central Lewes home with manageable outdoor space and good transport links—especially those who value historic charm and location over large gardens or major modern reconfiguration.
1 bedroom cottage for sale in Market Street, Lewes, BN7 — £300,000 • 1 bed • 1 bath • 682 ft²
3 bedroom town house for sale in High Street, Lewes, BN7 — £550,000 • 3 bed • 1 bath • 1428 ft²
4 bedroom town house for sale in High Street, LEWES, BN7 — £1,250,000 • 4 bed • 3 bath • 22465 ft²
2 bedroom cottage for sale in Mount Place, Lewes, BN7 — £385,000 • 2 bed • 1 bath • 538 ft²
3 bedroom terraced house for sale in High Street, Lewes, BN7 1XH, BN7 — £550,000 • 3 bed • 1 bath • 1454 ft²
3 bedroom house for sale in St. Peters Place, Lewes, BN7 — £650,000 • 3 bed • 1 bath • 1028 ft²














































































