**Standout Features:**
- Generous residential plot of approximately 0.3 acres in Muthill village
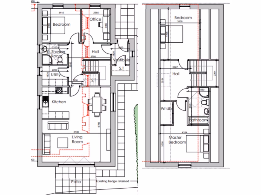
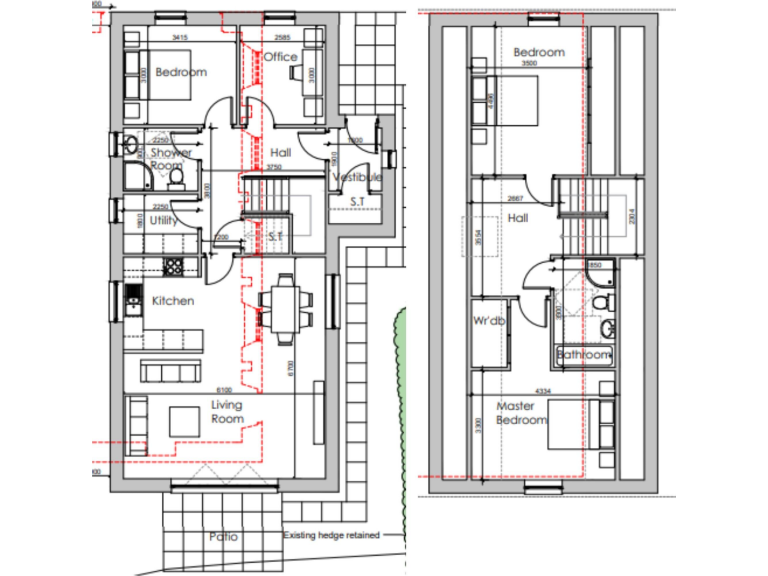
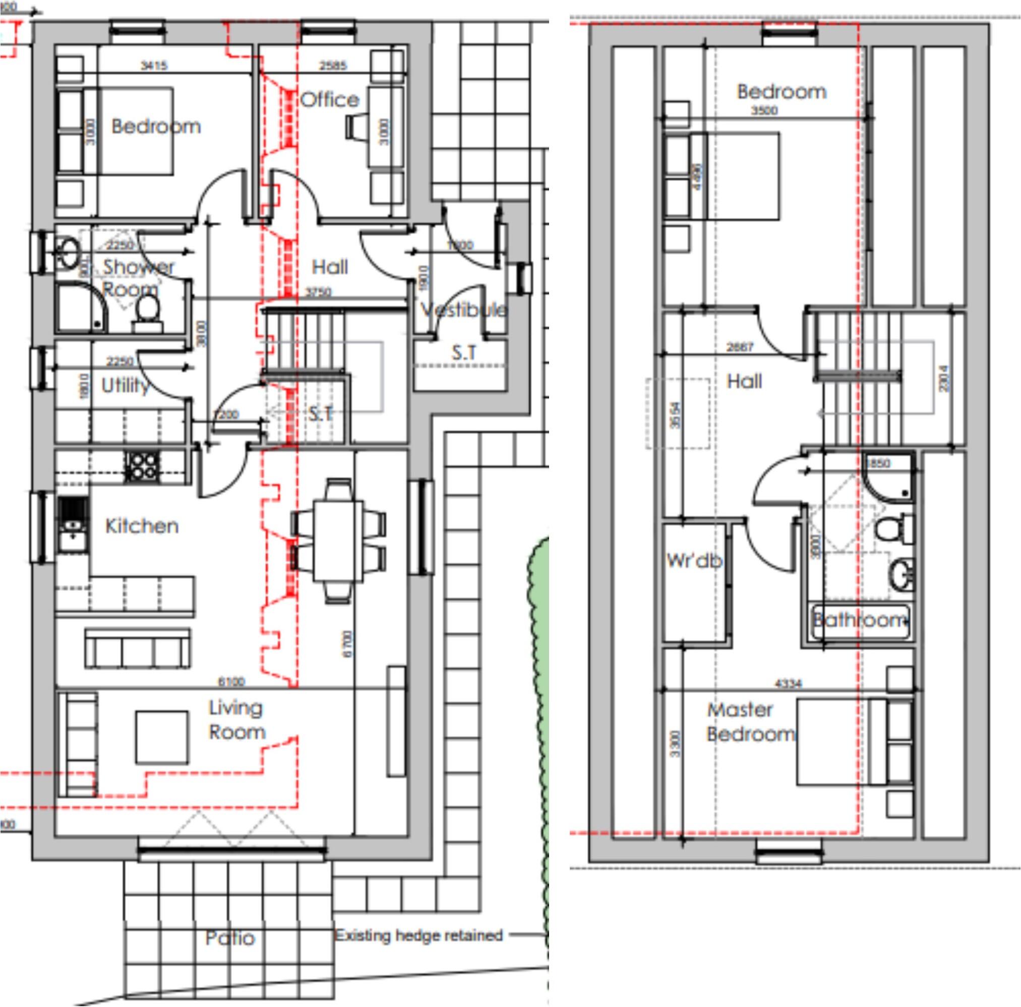
- Planning approval for a 3/4 bedroom villa, ensuring development potential
- Dual access from both the front and rear, providing flexibility
- Current structure includes a large stone workshop, ideal for renovation or redesign
- Scenic views of lush greenery, perfect for a peaceful retreat
**Potential Concerns:**
- The existing workshop is in a derelict state, requiring significant renovation efforts for repurposing
- Needs care in landscaping to make the most of the spacious garden area
This expansive residential plot in the heart of Muthill presents an exceptional opportunity for home builders and investors alike. Covering about 0.3 acres, the site boasts planning approval for demolishing the current workshop to make way for a stylish 3-4 bedroom villa designed by esteemed architects with open-plan living that flows out to a large south-facing garden. Enjoy the benefits of dual access and a cleared, level site that is primed for your creative vision.
Nestled amidst the tranquil backdrop of Perthshire's stunning countryside, this property offers not only a serene lifestyle but also accessibility to local amenities, including a school, a pub, and an award-winning restaurant—all just a short walk away. Although the existing stone workshop is in need of significant renovation, it represents a blank canvas for a savvy buyer looking to create a unique family home or investment property. Time to seize this rare chance to create your custom sanctuary in a charming village setting; opportunities like this do not last long!
Plot for sale in Plot at Monteath Street, Crieff, PH7 3BQ, PH7 — £65,000 • 4 bed • 1 bath • 516 ft²
Plot for sale in Clathymore Drive, Clathymore, Tibbermore, Perth, PH1 — £295,000 • 1 bed • 1 bath
Plot for sale in Roy Street, Crieff, Perth and Kinross, PH7 — £99,500 • 4 bed • 2 bath
Residential development for sale in Residential Plot Forebrae, By Methven, PH1 3RF, PH1 — £225,000 • 1 bed • 1 bath
Plot for sale in Clathymore - Plot 4.3, Clathymore Drive, By Perth, PH1 — £265,000 • 1 bed • 1 bath
3 bedroom detached house for sale in Glebe Road, Muthill, PH5 — £300,000 • 3 bed • 2 bath • 1485 ft²










































