G81 5AX - 3 bedroom terraced house for sale in Faifley Road, Clydeban…

View on Property Piper

3 bedroom terraced house for sale in Faifley Road, Clydebank, G81

Summary - 44, FAIFLEY ROAD, CLYDEBANK G81 5AX

3 bed 2 bath Terraced

Modern three-bedroom home with garden, solar panels and allocated parking—ideal for families..
Open-plan lounge/diner/kitchen with abundant natural light
Professionally landscaped, fenced rear garden with patio and decking
Three bedrooms, each with built-in storage
Solar panels plus gas central heating; EPC rating B
Allocated off-street parking and visitor spaces nearby
Walkable to Hardgate Cross shops, schools and transport
Home Report valuation £210,000; asking price £199,995
Located in a very deprived area; resale factors to consider
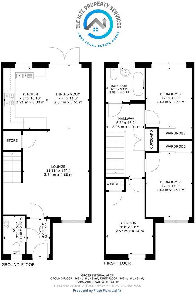
Step into a bright, modern three-bedroom mid-terrace arranged over two storeys, presented in walk-in condition. The open-plan lounge, dining and kitchen creates a sociable ground-floor heart, with large front windows and French doors flooding the space with light and linking easily to the landscaped, low-maintenance rear garden. Solar panels, gas central heating and double glazing combine to deliver good energy performance (EPC B) and lower running costs.

All three bedrooms offer built-in storage and comfortable proportions, while a ground-floor cloakroom and an upstairs family bathroom make daily routines straightforward for families. The property includes an allocated parking space with extra visitor parking nearby, fast broadband and excellent mobile signal — practical for homeworking and family life.

Located within walking distance of Hardgate Cross amenities, local schools and transport links to Glasgow and surrounding green space, the house suits young families seeking a turnkey home. The Home Report valuation at £210,000 versus the asking price of £199,995 indicates value for money in this market.

A candid note on location: the wider area is classified as very deprived, which may influence resale dynamics and local services. Internally the house is average-sized for its type (c.926 sq ft) and in modern condition, but buyers wanting substantially larger rooms or a rural setting should consider alternatives.

Property Details

Brochure Descriptions

Image Descriptions

Floorplan Description

Rooms

Textual Property Features

Target Audience

AI Tags

Detected Visual Features

Nearest Bars And Restaurants

,,,,}

Nearest General Shops

,,}

Nearest Grocery shops

,,}

Nearest Supermarkets

,,}

Nearest Religious buildings

,,}

Nearest Medical buildings

,,,}

Nearest Airports

,}

Nearest Leisure Facilities

,,,,}

Nearest Tourist attractions

,,}

Nearest Train stations

,,,,}

Nearest Bus stations and stops

,,,,}

Nearest Hotels

,,}

Tags

Local Market Stats

Similar Properties

Meta

High Res Images

Compatible Images

Low res Images

Thumbnails

Raw Images

High Res Floorplan Images

Compatible Floorplan Images

Low res Floorplan Images

FloorplanImages Thumbnail

Raw Floorplan Images