Architect-designed family home with terraces and cinema studio near London Bridge.
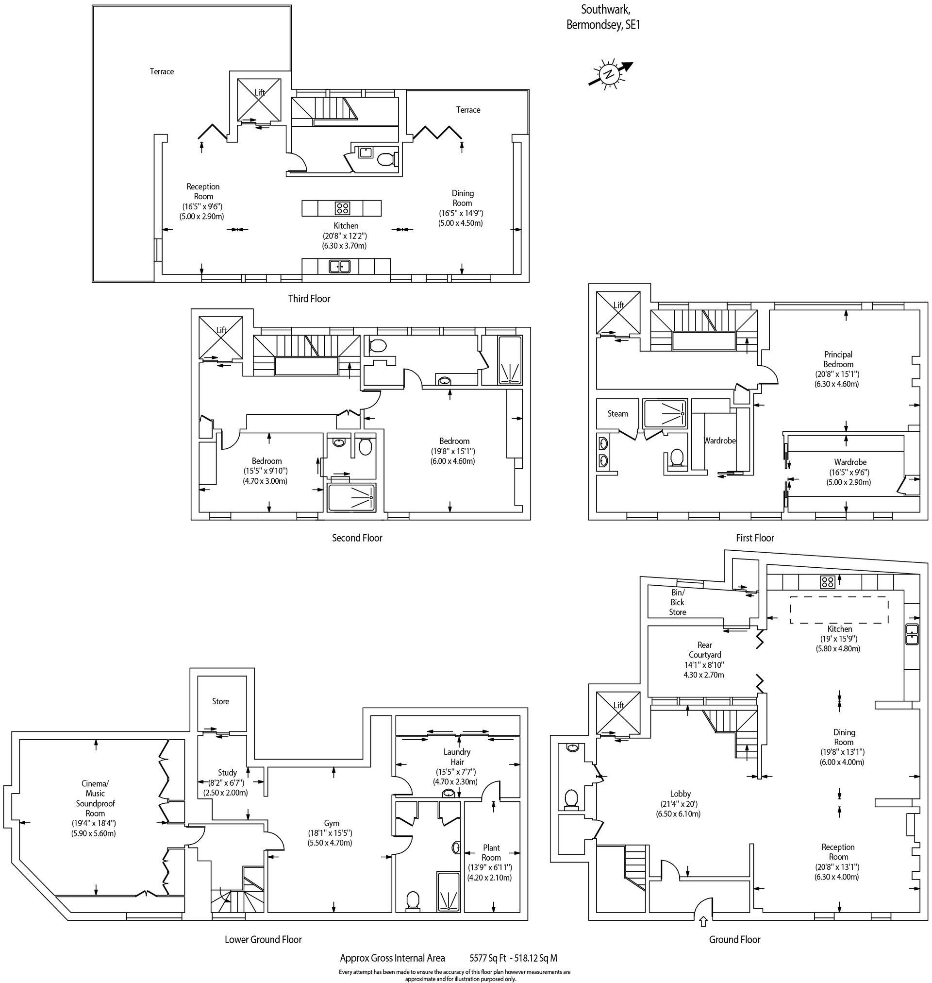
Freehold five-storey town house, extremely large c.5,577 sq ft
An exceptionally large, five-storey freehold town house in a quiet Bermondsey pocket, reimagined by a noted Danish designer. The house delivers expansive, flexible living over c.5,577 sq ft with a sculptural central staircase, lift to all floors and high-spec Maria Elia kitchens on two levels. Indoor-outdoor living is strong: an internal courtyard plus twin roof terraces each with barbecue and fire pit, and a courtyard garden at ground level.
Accommodation suits those seeking a high-spec family home or a striking pied-à-terre. The principal suite occupies an entire floor with walk-through dressing and mosaic-lined ensuite with a private steam room. Two further ensuite bedrooms sit above, while the lower ground houses a gym and wellness area with steam shower, a soundproofed cinema/music studio, laundry and salon — generous ancillary spaces rare for central SE1.
Practical strengths include off-street secure parking, bike storage, excellent mobile and fast broadband, mains gas underfloor heating, double glazing, very low flood risk and an EPC rating of B. The location is exceptionally convenient: a short walk to Bermondsey Street, Borough Market and London Bridge station with strong transport links across the city and beyond.
Notable considerations: the property sits in a high-crime ward and council tax is described as quite expensive; buyers should factor these running-cost and security implications into ownership plans. The house’s size and bespoke fittings mean maintenance and running costs will be higher than a standard dwelling. Overall, this is a rare, architecturally driven family house in central SE1 with substantial lifestyle and entertaining spaces, best suited to buyers who value design, space and proximity to central London amenities.
3 bedroom semi-detached house for sale in Southwark, Bermonsey, London, SE1 — £5,850,000 • 3 bed • 1 bath • 5577 ft²
5 bedroom house for sale in Graduate Place, London Bridge, SE1 — £1,250,000 • 5 bed • 4 bath • 17448 ft²
5 bedroom house for sale in Graduate Place, London Bridge, SE1 — £1,250,000 • 5 bed • 4 bath • 17448 ft²
5 bedroom house for sale in Brunel Road, London, SE16 — £2,500,000 • 5 bed • 3 bath • 4598 ft²
3 bedroom terraced house for sale in Lambeth Road, London, SE1 — £1,600,000 • 3 bed • 3 bath • 1802 ft²
5 bedroom semi-detached house for sale in Park Street, London, SE1 — £4,500,000 • 5 bed • 4 bath • 2916 ft²






































































