**Standout Features:**
- Detached freehold residence arranged as three separate flats
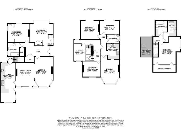
- Total floor area of 256 sq m (2,759 sq ft) over three floors
- Driveway with a block of four garages
- Garden with southerly aspect and rear plot parcels
- Extensive living space with rental potential
- Chain free, providing a smooth transition for buyers
**Summary Description:**
This unique detached freehold residence in Bournemouth offers an exciting opportunity for investors, families, or first-time buyers looking for a versatile property. With a total floor area of 256 sq m, the building is configured as three self-contained flats: a spacious ground floor flat (109 sq m) featuring a welcoming double reception room with access to the garden, perfect for family gatherings; a comfortable first-floor flat (59 sq m) with two double bedrooms, ideal for occupancy; and an inviting maisonette (53 sq m) on the top two floors, adding potential for additional rental income or guest accommodation.
The property is positioned on a desirable southerly plot and benefits from a rear garden and parcel of land that can be tailored to individual needs, making it a blank canvas for future renovations or improvements. While it boasts ample parking through a block of garages and a driveway, some exterior maintenance is required, offering you a chance to enhance the property's curb appeal. With no forward chain, seize this opportunity to invest in a property with flexibility and excellent rental potential in a cosmopolitan student neighborhood, surrounded by vibrant amenities and reputed schools. Don't miss out on this rare offering—schedule your viewing today!
8 bedroom flat for sale in Wimborne Road, BOURNEMOUTH, Dorset, BH2 — £600,000 • 8 bed • 6 bath • 2375 ft²
5 bedroom detached house for sale in Castlemain Avenue, Southbourne, BH6 — £425,000 • 5 bed • 1 bath • 488 ft²
2 bedroom ground floor flat for sale in Garden Flat, Fortescue Road, Bournemouth, Dorset, BH3 — £235,000 • 2 bed • 1 bath • 732 ft²
1 bedroom ground floor flat for sale in Portchester Road, Bournemouth, BH8 — £210,000 • 1 bed • 1 bath • 463 ft²
4 bedroom semi-detached house for sale in Nortoft Road, Bournemouth, BH8 — £429,950 • 4 bed • 2 bath • 1529 ft²
6 bedroom flat for sale in Bournemouth, BH2 — £410,000 • 6 bed • 3 bath • 1783 ft²


















































































































































