**Standout Features:**
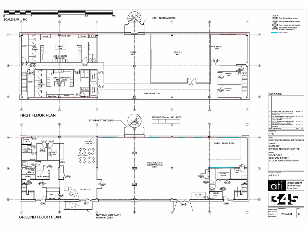
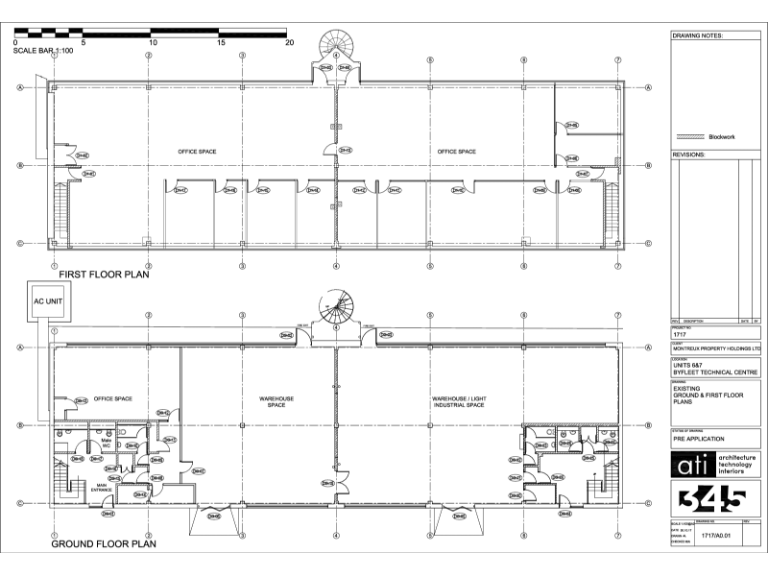
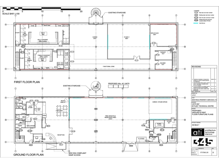
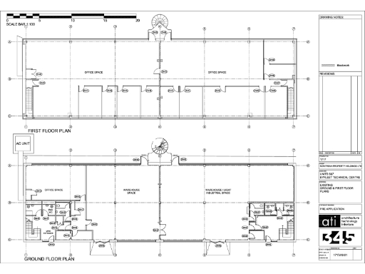
- **Size and Space**: Extensively sized at 10,294 sq. ft., configured as a dual high-tech warehouse office.
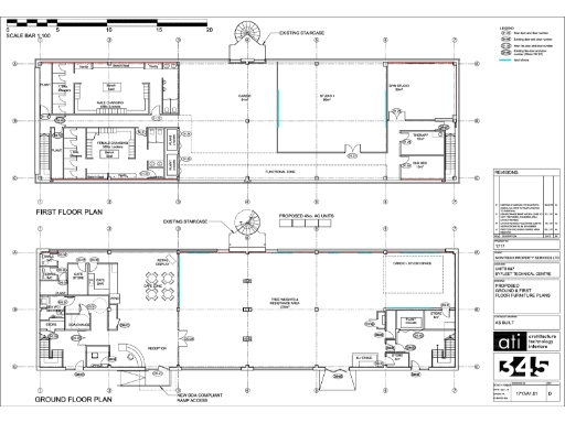
- **Current Use**: Established gym facility with changing rooms, café, and treatment rooms, demonstrating excellent adaptability.
- **Parking**: Accommodates 29 parking spaces, essential for customer access.
- **Lease Details**: Virtual freehold with 999 years remaining, starting from 2018, at a nominal rent.
- **Strategic Location**: Situated within the Byfleet Technical Centre, surrounded by notable companies like Bentley and Porsche, enhancing prestige.
- **Transport Connectivity**: Just 0.5 miles from Byfleet and New Haw Railway Station with direct rail links to London Waterloo.
**Potential Concerns:**
- **Maintenance Needs**: As an established gym, any repurposing may require new fittings or repairs for different uses.
- **Current Condition**: The existing facilities are tailored for specific gym needs, which may necessitate renovations based on future use.
Ideal for investors or entrepreneurs looking for a versatile property in a vibrant business setting, this spacious unit offers a unique opportunity to capitalize on the growing demand for adaptable commercial spaces. The potential for transformation back to office, light industry, or another commercial enterprise adds further appeal, making it a wise investment. With its combination of modern facilities, generous parking, and proximity to transport links, this property is poised for quick engagement. Don’t miss out on the chance to make this valuable investment your own!
Light industrial facility for sale in Unit 15A & 15B, Wintersells Road, Byfleet, KT14 7LF, KT14 — POA • 1 bed • 1 bath • 3178 ft²
Warehouse for sale in Unit 1 The Circuit Centre, Avro Way, Weybridge, KT13 0YT, KT13 — £775,000 • 1 bed • 1 bath • 3000 ft²
Commercial property for sale in Eden Grove, Byfleet, KT14 — £280,000 • 1 bed • 1 bath • 912 ft²
Warehouse for sale in Factory A, High Street, Old Woking, Woking, GU22 9LD, GU22 — £1,550,000 • 1 bed • 1 bath • 5613 ft²
Warehouse for sale in Unit B, Pier Road, North Feltham Trading Estate, Feltham, TW14 0TW, TW14 — £2,700,000 • 1 bed • 1 bath • 8867 ft²
Warehouse for sale in Market Road, London, TW9 — £1,000,000 • 1 bed • 1 bath • 3277 ft²


















