Chain-free bungalow close to village amenities and rail links.
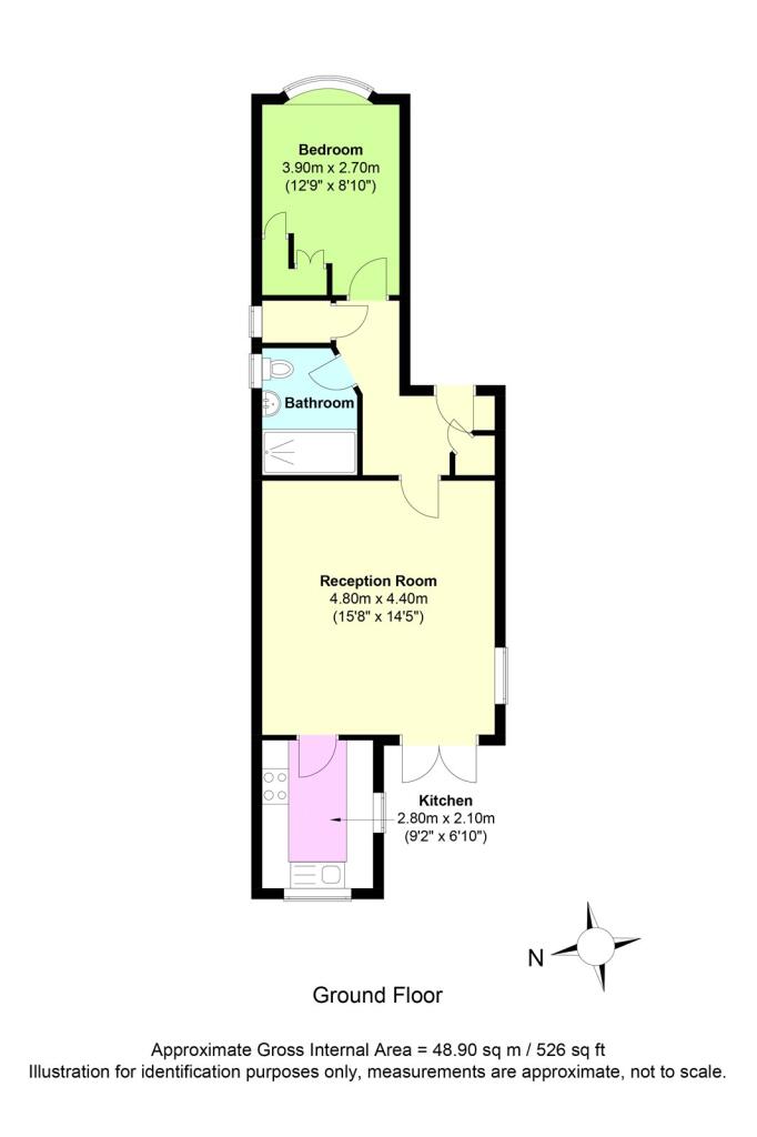
Detached one-bedroom bungalow, 526 sq ft
Set just a short walk from the village centre and Lancing station, this detached one-bedroom bungalow offers an attractively low-maintenance home with immediate move-in appeal. The interior is presented in a contemporary style with a modern shower room and a comfortable reception space that benefits from good natural light.
Practical features include off-street parking, a decent-sized low-maintenance garden and gas central heating via boiler and radiators. The property is chain free, so a straightforward purchase is possible for downsizers, first-time buyers or investors seeking a rental-ready asset in a popular area.
There is real scope to add value: the site offers potential to extend to the rear subject to planning permission (not yet applied for). The bungalow’s modest 526 sq ft footprint makes it easy to run, but also limits living space — extension would be the main route to increase long-term comfort and resale value.
Buyers should note the home is a mid-20th-century build with double glazing fitted before 2002 and a filled cavity wall. While this means no immediate structural concerns are flagged, modernization or selective refurbishment may be needed over time to personalise the interior and update older fittings.
3 bedroom detached bungalow for sale in Manor Way, Lancing, BN15 0QU, BN15 — £370,000 • 3 bed • 1 bath • 921 ft²
2 bedroom bungalow for sale in Steepdown Road, Sompting, Lancing, West Sussex, BN15 — £375,000 • 2 bed • 1 bath • 672 ft²
2 bedroom semi-detached bungalow for sale in Grafton Gardens, Sompting, BN15 — £340,000 • 2 bed • 1 bath • 886 ft²
3 bedroom detached bungalow for sale in Old Shoreham Road, Lancing, BN15 0QZ, BN15 — £440,000 • 3 bed • 1 bath • 1435 ft²
3 bedroom bungalow for sale in Barfield Park, Lancing, West Sussex, BN15 — £425,000 • 3 bed • 1 bath • 747 ft²
1 bedroom bungalow for sale in West Way, Lancing, West Sussex, BN15 — £300,000 • 1 bed • 1 bath • 748 ft²














































































