**Standout Features:**
- 8-bedroom block of 7 fully-let flats
- Strong income potential: £42,000 annual rent, yielding 9.3%
- Prime location near local shops, schools, and transport links
- Attractive Victorian-style building with good rental history
- Freehold title with potential for leasehold conversion
**Notable Concerns:**
- Limited renovation or extension opportunities due to listed status
- Average local amenities and broadband speeds
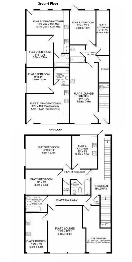
This unique opportunity in Ferndale features a well-maintained block of 7 residential flats, fully let and generating immediate income. Located on the bustling main street of Tylorstown, residents enjoy easy access to shops, schools, and transport, making it an appealing option for families and working professionals alike. The property boasts combined monthly rent of £3,500 and a commendable gross yield of 9.3%, providing a solid investment for seasoned landlords.
Each flat is currently occupied, with tenants who have a history of timely payments, ensuring stability and a hassle-free investment experience. While the property is held under a single freehold title, there is potential for the buyer to explore converting to leasehold titles for individual sales, a proposition worth discussing with your solicitor. Given its current state, where significant renovations may be challenging due to its listed status, this multifamily investment offers assured returns in an area primed for growth, making it a compelling choice for savvy investors looking to expand their portfolio. Don’t miss out on securing this lucrative asset while it lasts!
8 bedroom block of apartments for sale in Llys Soar, Scott Street, CF42 — £475,000 • 8 bed • 8 bath
5 bedroom block of apartments for sale in Cyril Crescent, Roath, CF24 — £450,000 • 5 bed • 5 bath • 560 ft²
6 bedroom block of apartments for sale in Connaught Road, Roath, Cardiff, CF24 — £675,000 • 6 bed • 1 bath • 1594 ft²
5 bedroom block of apartments for sale in Newport Road, Cardiff, CF24 — £675,000 • 5 bed • 5 bath • 377 ft²
2 bedroom flat for sale in 5 Cemetery Road, CF39 — £649,995 • 2 bed • 1 bath • 636 ft²
6 bedroom block of apartments for sale in Church Street, Ebbw Vale, Gwent, Blaenau Gwent, NP23 — £340,000 • 6 bed • 4 bath






















































































