GU34 1PZ - House of multiple occupation for sale in Kings Road, Alton,…

View on Property Piper

House of multiple occupation for sale in Kings Road, Alton, Hampshire, GU34 1PZ, GU34

Summary - Kings Road, Alton, Hampshire, GU34 1PZ GU34 1PZ

1 bed 1 bath House of Multiple Occupation

**Key Features:**
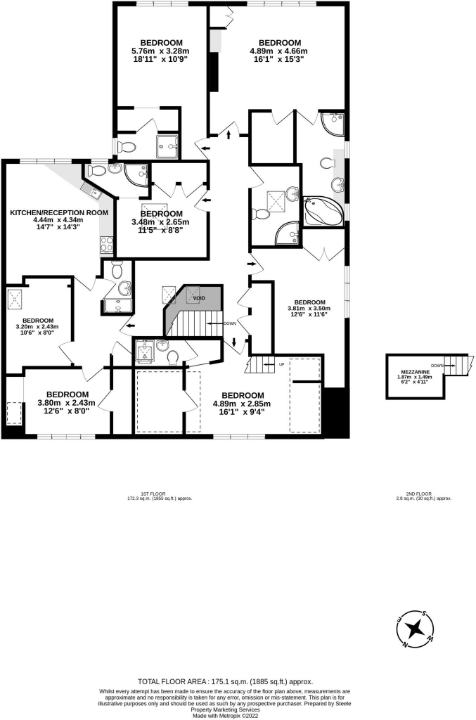
- Fully licensed HMO with 16 bedrooms and 15 bathrooms
- Gross income potential of approximately £135,000 per annum
- Secure sale via online auction
- Prime location near Alton town centre (0.6 miles) and Alton Station (1 mile)
- Close proximity to M3, A31, and A3 road links
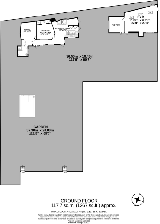
- Spacious property with 3821 sq ft and large plot size
- Low crime area with excellent mobile signal and fast broadband

Investors will find this stunning fully licensed House of Multiple Occupation (HMO) an exceptional opportunity in one of Alton's desirable neighborhoods. Comprising 16 well-appointed bedrooms and 15 bathrooms, this expansive property currently generates around £135,000 gross per annum, with abundant potential for improvement, making it a lucrative addition to any portfolio.

This contemporary two-storey home features a large plot with ample outdoor space, including a garden and garage, perfect for future expansions. Enjoy the serenity of nearby countryside walks while being conveniently close to local amenities, schools with good Ofsted ratings, and transport links. Given its attractive income potential and location benefits, this property is not likely to last long in the market. Don't miss your chance to invest in a thriving rental opportunity that could provide both immediate returns and future growth!

Property Details

Image Descriptions

Floorplan Description

Rooms

Textual Property Features

Detected Visual Features

Nearby Schools

Nearest Bars And Restaurants

,,,,}

Nearest General Shops

,,}

Nearest Grocery shops

,,}

Nearest Supermarkets

,,}

Nearest Religious buildings

,,}

Nearest Medical buildings

,,,}

Nearest Airports

}

Nearest Leisure Facilities

,,,,}

Nearest Tourist attractions

,,}

Nearest Train stations

,,,,}

Nearest Bus stations and stops

,,,,}

Nearest Hotels

,,}

Tags

Local Market Stats

Similar Properties

Meta

High Res Images

Compatible Images

Low res Images

Thumbnails

Raw Images

High Res Floorplan Images

Compatible Floorplan Images

Low res Floorplan Images

FloorplanImages Thumbnail

Raw Floorplan Images