LA12 7JJ - 4 bedroom town house for sale in Clarence Street, Ulverston…

View on Property Piper

4 bedroom town house for sale in Clarence Street, Ulverston, LA12

Summary - 28 Clarence Street LA12 7JJ

4 bed 1 bath Town House

**Standout Features:**
- Spacious 4 double bedrooms
- 2 inviting reception rooms
- Modern, extended kitchen with integrated appliances
- Convenient separate utility room
- Potential for family living with flexible layout over 3 floors
- Enhanced by gas central heating and double glazing
- Garage for storage or motorbike
- Appealing Victorian style with bay windows
- Short walk to the town center and local parks
- Freehold property; council tax band C

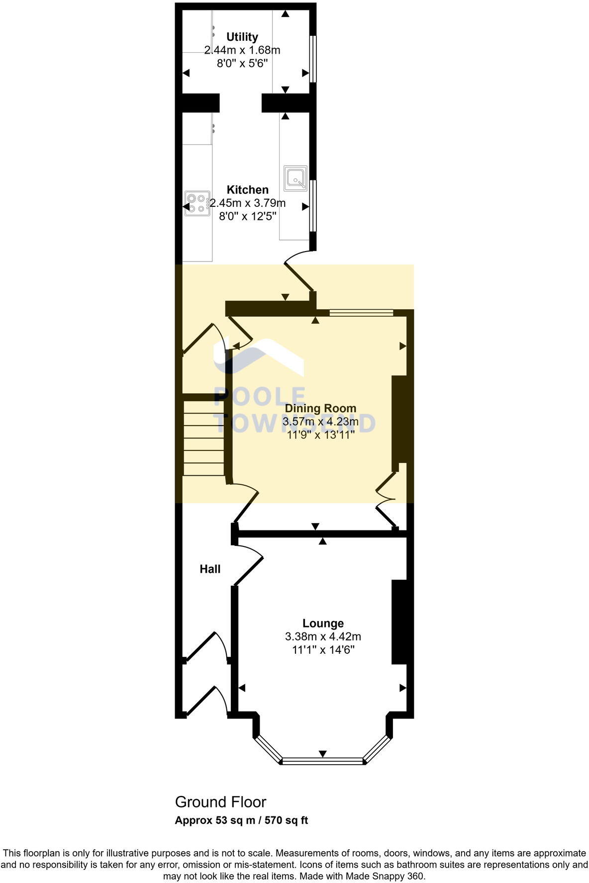
Nestled in a peaceful cul-de-sac just moments from the vibrant Ulverston town center, this charming four-bedroom end-terrace townhouse is perfect for families seeking comfortable living combined with modern convenience. Spanning three floors, the home features two spacious reception rooms that invite relaxation, alongside a recently renovated extended kitchen equipped with stylish units and quality appliances. The layout is thoughtfully designed, offering two primary bedrooms on the elevated landing, including a front room with a walk-in wardrobe, while two additional bedrooms are situated on the upper floor, catering to a variety of needs.

The property boasts a modest yet functional outdoor space, complete with a walled yard, and a garage providing additional storage options. With excellent access to a range of amenities— from local shops, pubs, and restaurants to essential schools—the location is ideal for families and first-time buyers alike. While the area has a higher crime rate compared to some regions, the community’s accessibility and amenities offer a supportive environment. This inviting home is ready to welcome its new owners and invites you to envision your future in the heart of Ulverston. Don’t miss out on the opportunity to make this delightful property your own!

Property Details

Brochure Descriptions

Image Descriptions

Floorplan Description

Rooms

Textual Property Features

Detected Visual Features

EPC Details

Nearby Schools

Nearest Bars And Restaurants

,,,,}

Nearest General Shops

,,}

Nearest Grocery shops

,,}

Nearest Supermarkets

,,}

Nearest Religious buildings

,,}

Nearest Medical buildings

,,,}

Nearest Leisure Facilities

,,,,}

Nearest Tourist attractions

,,}

Nearest Train stations

,,,,}

Nearest Bus stations and stops

,,,,}

Nearest Hotels

,,}

Tags

Local Market Stats

AirBnB Data

Similar Properties

Meta

High Res Images

Compatible Images

Low res Images

Thumbnails

Raw Images

High Res Floorplan Images

Compatible Floorplan Images

Low res Floorplan Images

FloorplanImages Thumbnail

Raw Floorplan Images