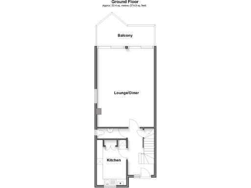
**Standout Features:**
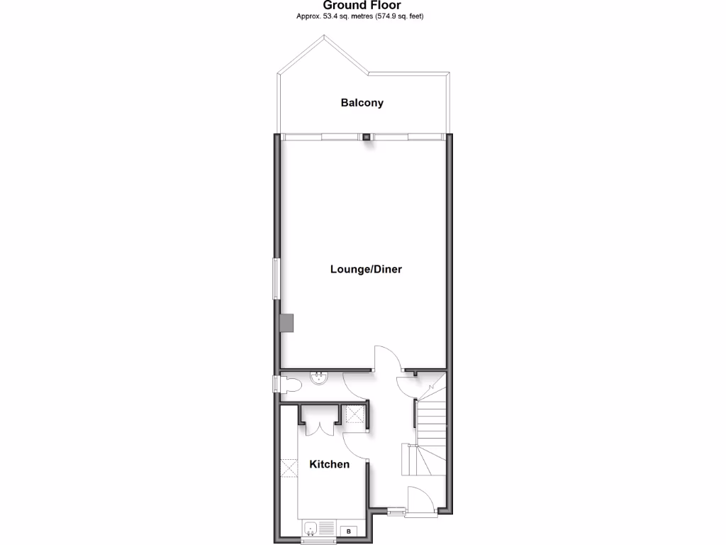
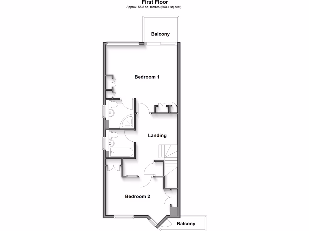
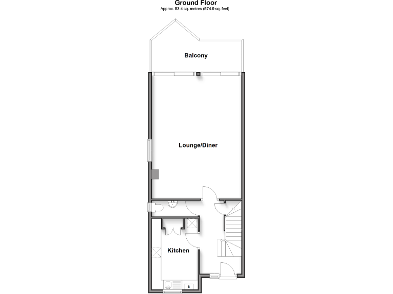
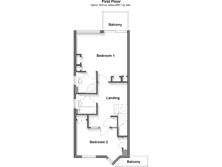
- Modern ground floor duplex apartment in a gated riverside development
- Two river-facing balconies with stunning sunset views
- Spacious lounge and modern kitchen with high-end finishes
- Two allocated parking spaces and communal gardens
- Walking distance to historic High Street and high-speed station
**Notable Concerns:**
- High service charge of £3,257
- Very high crime rate in the area
Nestled within a modern gated riverside development, this spacious two-bedroom ground flat offers a perfect blend of comfort and convenience. Enjoy breathtaking sunset views from two private balconies while relishing the spacious lounge, which seamlessly connects to a well-equipped kitchen featuring modern appliances. The apartment boasts two bathrooms, including an en-suite, ensuring ample privacy for family or guests. With two allocated parking spaces and access to communal gardens, this property provides a serene escape while being a short stroll from the historic High Street and high-speed station.
Although the services charge is set at £3,257, the apartment's excellent location, double glazing, and efficient mains gas heating can be seen as an investment in a comfortable lifestyle. Given the very high crime rate in the area, it’s essential for potential buyers to consider security measures. Perfect for families or first-time buyers, this unique apartment combines modern living with picturesque views—don’t miss the chance to make it your own!
2 bedroom apartment for sale in Florin Drive, Rochester, Kent, ME1 — £235,000 • 2 bed • 1 bath • 625 ft²
2 bedroom apartment for sale in Applecross Close, Rochester, Kent, ME1 — £250,000 • 2 bed • 2 bath • 668 ft²
2 bedroom apartment for sale in Esplanade, Esplanade, Rochester, Kent, ME1 — £260,000 • 2 bed • 1 bath • 722 ft²
2 bedroom apartment for sale in Bridge House, Valetta Way, Rochester, ME1 — £290,000 • 2 bed • 1 bath • 19375 ft²
2 bedroom apartment for sale in Valetta Way, Rochester, Kent, ME1 — £230,000 • 2 bed • 1 bath • 518 ft²
3 bedroom ground floor flat for sale in Esplanade, Rochester, Kent, ME1 — £403,000 • 3 bed • 2 bath • 1131 ft²










































