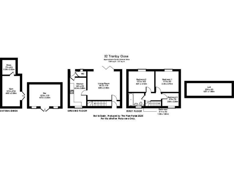
### Standout Features:
- Three well-proportioned bedrooms
- Spacious open-plan living with bi-fold doors to the garden
- Unique outdoor features: gymnasium and stylish bar area
- Ample off-road parking for several vehicles
- Useful loft room for extra functionality
- Walking distance to Metrolink tram stop
- Convenient access to local amenities and schools
- Very low crime rate in a family-friendly neighborhood
### Summary:
Discover this meticulously maintained three-bedroom mid-terrace family home in the sought-after residential area of Wythenshawe, priced at £260,000. With a spacious layout, this inviting property features a generous lounge that flows seamlessly into an open-plan kitchen and dining area, enhanced by full-sized UPVC bi-fold doors leading to a beautifully landscaped south-facing garden. Embrace outdoor living and entertaining with a unique bar area and a dedicated gym space—perfect for warming summer days.
The first floor hosts three comfortable bedrooms and a modern family bathroom, while a useful loft room provides flexible options for a home office or guest accommodation. Enjoy the convenience of off-road parking for multiple vehicles, a rare find in this area. Nestled within walking distance of the Metrolink tram stop, this home ensures excellent transport links to Manchester City Centre and surrounding locations. Families will appreciate the proximity to reputable schools, local parks, and amenities, making it a fantastic choice for first-time buyers or those looking to upsize. Don’t miss your chance to experience comfortable family living combined with urban accessibility—schedule a viewing today!
3 bedroom end of terrace house for sale in Royalthorn Road, Manchester, M22 — £270,000 • 3 bed • 2 bath • 775 ft²
3 bedroom end of terrace house for sale in Thirlmere Road, Wythenshawe, Manchester, Greater Manchester, M22 — £260,000 • 3 bed • 2 bath • 696 ft²
3 bedroom detached house for sale in Colchester Close, MANCHESTER, Lancashire, M23 — £325,000 • 3 bed • 1 bath • 1255 ft²
3 bedroom terraced house for sale in Wythenshawe Road, Manchester, M23 — £300,000 • 3 bed • 1 bath • 1114 ft²
4 bedroom terraced house for sale in Barrowfield Road, MANCHESTER, Lancashire, M22 — £280,000 • 4 bed • 1 bath • 1296 ft²
3 bedroom terraced house for sale in Covert Road, Manchester, M22 — £240,000 • 3 bed • 1 bath • 726 ft²


















































































































