**Standout Features:**
- Freehold building plot approximately 0.1 acres
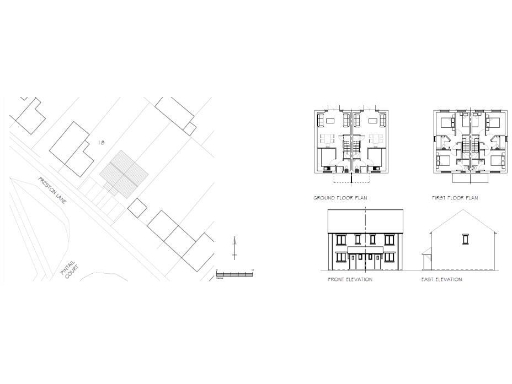
- Planning in Principle (PIP) granted for two semi-detached houses (3 bedrooms each)
- Projected Gross Development Value (GDV) of £700,000
- Ideal for family living in a charming village setting
- Excellent mobile signal, but slow broadband speeds
**Summary:**
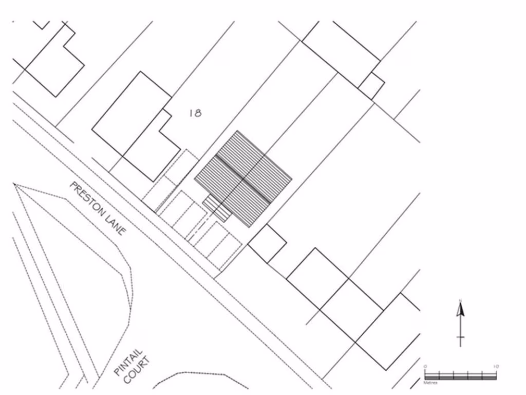
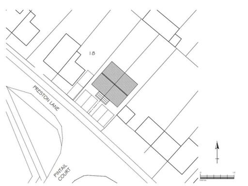
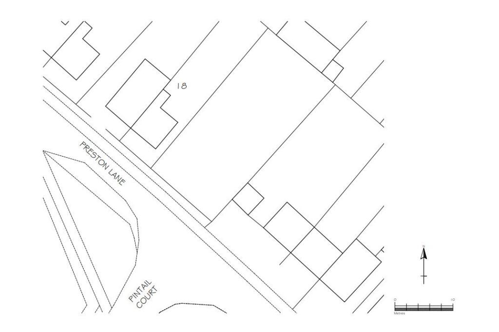
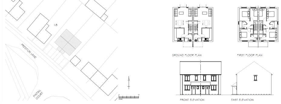
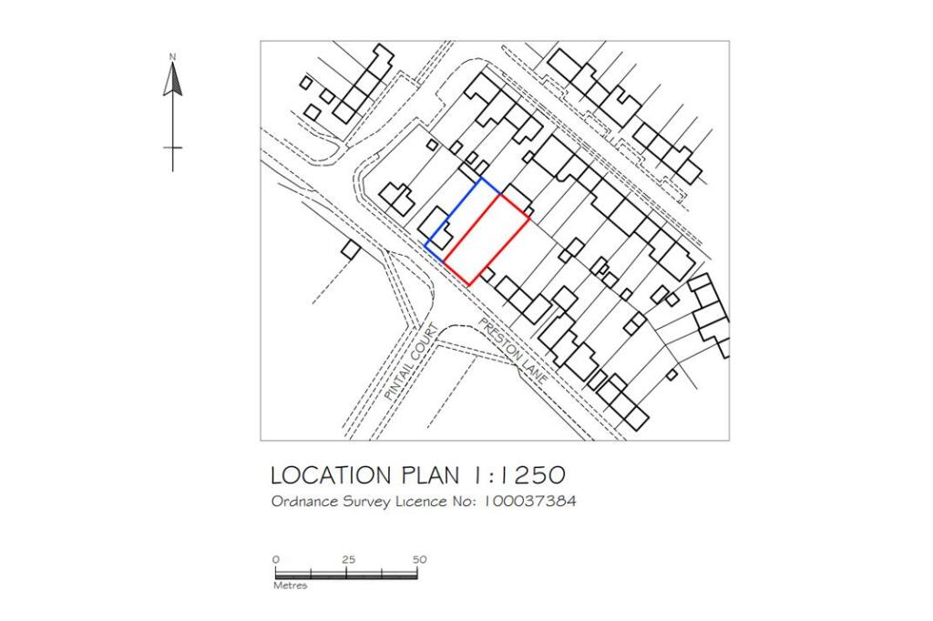
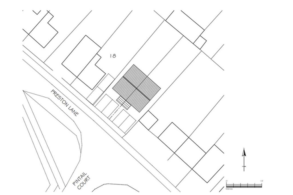
Discover a prime building plot located adjacent to 18 Preston Lane in sought-after Lyneham, Wiltshire. This freehold parcel of land, approximately 0.1 acres in size and previously used as a garden, comes with planning permission for two semi-detached houses, each featuring three bedrooms, a secure garden, and parking space. With a projected GDV of £700,000, this is a lucrative investment opportunity for builders and developers.
The plot is nestled in a picturesque village known for its low crime rates and vibrant community atmosphere, offering easy access to local amenities including supermarkets, pubs, and excellent primary schools. Residents will enjoy the tranquility of the surrounding countryside while having essential services within reach. This rare development opportunity is not to be missed—act quickly to take advantage of this chance to create homes in a desirable family-friendly area.
3 bedroom semi-detached house for sale in Calne Road, Lyneham, Chippenham, SN15 — £150,000 • 3 bed • 1 bath • 1098 ft²
Land for sale in Brinkworth, Chippenham, Wiltshire, SN15 — £450,000 • 1 bed • 1 bath
Plot for sale in Quemerford, Calne, SN11 — £185,000 • 3 bed • 3 bath • 1564 ft²
Land for sale in Lane / Land at the rear of, Wootton Bassett Road, Swindon, Wiltshire, SN1 4NQ, SN1 — POA • 1 bed • 1 bath
3 bedroom detached bungalow for sale in Farthing Lane, Lyneham SN15 4, SN15 — £875,000 • 3 bed • 2 bath • 1100 ft²
Land for sale in St. Ediths Marsh, Bromham, Chippenham, Wiltshire, SN15 — £250,000 • 1 bed • 1 bath • 3000 ft²


































































