**Standout Features:**
- 3 bedrooms, 3 bathrooms, and spacious family-friendly layout
- Private driveway and off-street parking
- Large windows for abundant natural light
- Designer kitchen with pantry and utility space
- En-suite shower in the master bedroom with fitted wardrobes
- Recent new build with contemporary architecture
- Private decked garden and landscaped front garden for added privacy
**Potential Concerns:**
- Located in a socio-economically deprived area
- Average-sized property within older farming community
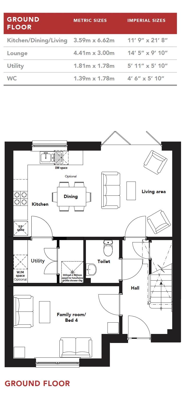
Discover your dream family home in this beautifully designed, modern 3-bedroom detached house located at Water of Coyle, Drongan. Embrace a lifestyle of comfort in this new build that features a spacious hallway leading to a luxurious designer kitchen outfitted with modern appliances and ample pantry space. The open-plan dining area merges seamlessly with a private decked garden through bi-fold doors—perfect for summer entertaining and enjoying outdoor living.
Upstairs, three generously sized double bedrooms await, offering tranquility and space for everyone. The master bedroom features an en-suite shower and built-in wardrobes, providing both privacy and practicality. A well-appointed family bathroom ensures comfort for all.
While the home is nestled within a community that has its challenges, it offers fast broadband speeds and excellent mobile signal, making it suitable for families with varying needs. This inviting property, priced at £245,000, presents a unique opportunity for both families and investors looking to create lasting memories in a contemporary setting. Act fast—homes like this don't stay on the market long!
3 bedroom detached house for sale in Water of Coyle , Truesdale Crescent, Drongan , KA6 7DX, KA6 — £202,500 • 3 bed • 3 bath • 995 ft²
3 bedroom semi-detached house for sale in Water of Coyle , Truesdale Crescent, Drongan , KA6 7DX, KA6 — £182,500 • 3 bed • 3 bath • 910 ft²
3 bedroom detached house for sale in Water of Coyle , Truesdale Crescent, Drongan , KA6 7DX, KA6 — £227,000 • 3 bed • 3 bath • 1001 ft²
3 bedroom semi-detached house for sale in Water of Coyle , Truesdale Crescent, Drongan , KA6 7DX, KA6 — £182,500 • 3 bed • 3 bath • 910 ft²
3 bedroom detached house for sale in Water of Coyle , Truesdale Crescent, Drongan , KA6 7DX, KA6 — £247,000 • 3 bed • 3 bath • 1150 ft²
3 bedroom semi-detached house for sale in Water of Coyle , Truesdale Crescent, Drongan , KA6 7DX, KA6 — £182,500 • 3 bed • 3 bath • 910 ft²










































