Family-ready home near parks, schools and strong transport links.
Newly renovated kitchen, bathroom, boiler, flooring and doors
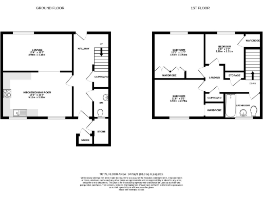
This newly renovated three-bedroom semi-detached home on Blenheim Way offers ready-to-live-in accommodation with sensible modern upgrades. The kitchen/diner has been refitted with integrated appliances, granite-style worktops and space for an eight‑seater table—ideal for family meals and entertaining. The boiler, bathroom, flooring, windows and doors were all replaced during the recent refurbishment, and the property benefits from an EPC rating of C.
Set close to The Chequers and within walking distance of local parks, woodlands and handy shops, the house sits in a quiet road with very low crime and excellent mobile and broadband coverage. Commuters will appreciate nearby mainline stations and quick access to the A1(M) and A602. Local schools rated Good–Outstanding are within easy reach, making this a practical pick for growing families.
Practicalities to note: the plot is small and the front garden would need converting to create formal off-street parking (the sellers say it could accommodate three to four vehicles). The roof shows areas of moss which suggests some external maintenance may be needed in the near term. Double glazing was installed before 2002 and cavity wall insulation is partial/assumed.
Overall this is a turn-key family home in an affluent, friendly neighbourhood with scope to personalise outside space and address routine maintenance items. Freehold tenure and affordable council tax add to the straightforward running costs and long-term appeal.
3 bedroom semi-detached house for sale in Fellowes Way, Stevenage, Hertfordshire, SG2 8BW, SG2 — £425,000 • 3 bed • 1 bath • 1027 ft²
3 bedroom semi-detached house for sale in Balmoral Close, Stevenage, SG2 — £425,000 • 3 bed • 1 bath • 1157 ft²
3 bedroom semi-detached house for sale in Lyndale, Stevenage, SG1 — £400,000 • 3 bed • 1 bath • 1054 ft²
3 bedroom semi-detached house for sale in Swale Close, Stevenage, Hertfordshire, SG1 — £400,000 • 3 bed • 2 bath • 1127 ft²
3 bedroom semi-detached house for sale in Green Close, Stevenage, SG2 8BP, SG2 — £400,000 • 3 bed • 1 bath • 947 ft²
4 bedroom detached house for sale in Knights Close, Buntingford, SG9 — £725,000 • 4 bed • 2 bath • 1419 ft²


























































