Move-in ready family home with external lodge and off-street parking.
Over 1,000 sq ft of living space including external insulated lodge
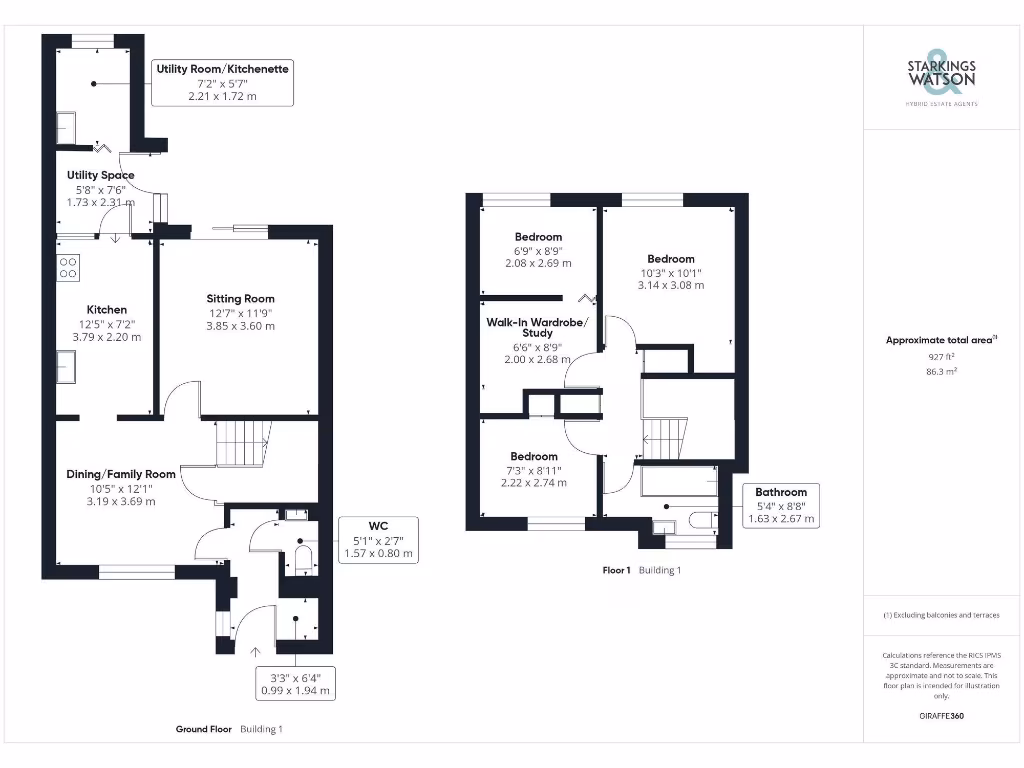
This mid-terrace home has been fully modernised and extended to provide versatile family accommodation across just over 1,000 sq ft. The ground floor offers a central dining/family room plus a separate sitting room that opens onto a low-maintenance rear garden. A contemporary kitchen links to a utility area and a converted outhouse/kitchenette, adding practical space for laundry and hobbies. Outside, a bespoke insulated garden lodge creates a ready-made office, play space or entertainment room.
Upstairs are three bedrooms and an updated family bathroom. The largest bedroom has been sub-divided to create a study/walk-in wardrobe area but can be easily returned to one generous principal bedroom. The house benefits from double glazing, gas central heating and very fast broadband and mobile signal — useful for home working in the garden lodge. Off-street parking is available to the rear and an external garage may be available from the council for a separate monthly fee.
Important points to note: the plot is compact and the garden is designed for low maintenance rather than extensive outdoor living. The garage is not included in the sale and requires a council application and a current fee of approximately £45pcm. The property sits in an area with higher local deprivation; neighbouring streets are mixed in quality and local services are variable. Council tax is very low, which helps running costs.
Overall, this freehold terrace suits families or buyers wanting a move-in-ready home with useful outbuilding space and strong connectivity. It offers immediate comfort with scope to reconfigure the upper floor and to personalise finishes if desired.
3 bedroom terraced house for sale in Ipswich Road, Lowestoft, Suffolk, NR32 — £170,000 • 3 bed • 1 bath • 786 ft²
3 bedroom terraced house for sale in Bramble Green, Lowestoft, NR32 — £200,000 • 3 bed • 1 bath • 969 ft²
3 bedroom terraced house for sale in Northgate, North Lowestoft, NR32 — £195,000 • 3 bed • 1 bath • 829 ft²
2 bedroom end of terrace house for sale in Birds Lane, Lowestoft, Suffolk, NR33 — £175,000 • 2 bed • 2 bath • 1000 ft²
3 bedroom house for sale in Selby Street, Lowestoft, Suffolk, NR32 — £140,000 • 3 bed • 1 bath • 719 ft²
3 bedroom terraced house for sale in Wollaston Road, Lowestoft, NR32 — £130,000 • 3 bed • 1 bath • 894 ft²






















































































