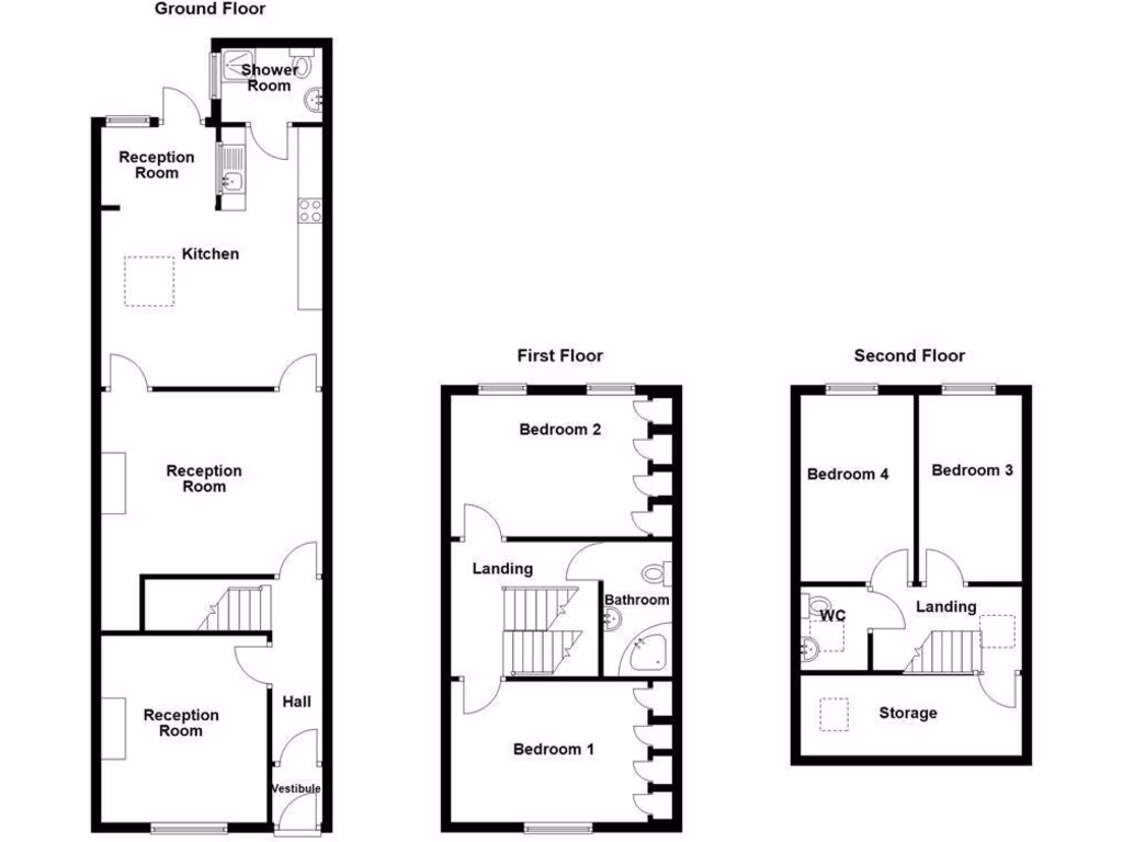
**Standout Features:**
- Spacious four-bedroom mid-terrace house
- Two reception rooms and a contemporary fitted kitchen
- Two bathrooms, including a convenient downstairs shower room
- Enclosed rear yard, perfect for outdoor activities
- Ideally located near local amenities, schools, and transport links
- Freehold tenure with a Council Tax Band of A, making it budget-friendly
**Summary:**
Discover this inviting four-bedroom mid-terraced home on Cherry Street, Blackburn—ideal for families seeking space and comfort. This extended property combines modern features with traditional charm, showcasing two generous reception rooms perfect for relaxation or entertaining, along with a contemporary kitchen that fuels culinary creativity. The convenience of two bathrooms—including a downstairs shower room—caters to the needs of busy households.
With its well-proportioned bedrooms, this home not only meets everyday living demands but also provides room for future renovations or personal touches. Enjoy an enclosed rear yard for outdoor activities and on-street parking for added convenience. Nestled in a thriving community, you'll have easy access to shops, restaurants, and schools, making it a desirable choice for families.
While the property boasts a solid foundation, potential buyers should consider the unique Victorian build, which may require some personal modernization. Additionally, its EPC rating of D suggests opportunities for energy efficiency improvements. Don't miss your chance to make this versatile property your own—schedule a viewing today and envision your family's future in this delightful home!
4 bedroom terraced house for sale in St. James Street, Blackburn, BB2 — £95,000 • 4 bed • 1 bath • 1238 ft²
3 bedroom terraced house for sale in Lynwood Road, Blackburn, BB2 — £140,000 • 3 bed • 1 bath • 1357 ft²
2 bedroom terraced house for sale in Nook Terrace, Cherry Tree, Blackburn, BB2 — £120,000 • 2 bed • 1 bath • 962 ft²
3 bedroom terraced house for sale in Burnley Road, BLACKBURN, Lancashire, BB1 — £155,000 • 3 bed • 1 bath • 1218 ft²
3 bedroom terraced house for sale in Preston Old Road, Cherry Tree, Blackburn, Lancashire, BB2 — £279,950 • 3 bed • 1 bath • 1785 ft²
2 bedroom end of terrace house for sale in Palmer Road, Blackburn, BB1 — £100,000 • 2 bed • 1 bath • 896 ft²






































































































































